Nhà ở mái Nhật 1 tầng đang rất được ưa chuộng tại Hải Phòng. Kiểu nhà này mang vẻ đẹp truyền thống, kết hợp tiện ích hiện đại. Nó phù hợp với khí hậu mưa nhiều, nóng ẩm của thành phố cảng.
Hôm nay, Mộc Trang giới thiệu mẫu nhà ở mái Nhật 1 tầng diện tích 160m² thực tế của gia đình bác Thiết tại Vĩnh Bảo. Công trình này đáp ứng tốt nhu cầu sinh hoạt và mang lại không gian sống thoải mái, thẩm mỹ cao.
Nhà ở mái Nhật 1 tầng có gì đặc biệt?
Nhà mái Nhật 1 tầng có mái dốc nhẹ, thoai thoải. Mái thường xếp lớp hoặc mở rộng ra các hướng. Phong cách này bắt nguồn từ Nhật Bản, nhưng đã được điều chỉnh phù hợp với Việt Nam.
Tại Hải Phòng, kiểu nhà này có nhiều ưu điểm nổi bật:
- Thoát nước nhanh, chống thấm dột hiệu quả vào mùa mưa.
- Giảm nhiệt tốt, giúp nhà mát mẻ hơn vào mùa hè.
- Không gian mở, đón ánh sáng và gió tự nhiên dồi dào.
- Thiết kế tinh tế, sang trọng mà vẫn gần gũi.
- Chi phí xây dựng hợp lý hơn nhà cao tầng.
Nhiều gia đình ở Vĩnh Bảo, Kiến Thụy, An Dương, An Lão đang chọn nhà ở mái Nhật 1 tầng vì những lý do trên.

Ưu điểm thực tế khi xây nhà mái Nhật 1 tầng tại Hải Phòng
- Thẩm mỹ cao Mái dốc nhẹ tạo vẻ đẹp nhẹ nhàng, hiện đại pha truyền thống. Dễ kết hợp sân vườn, cây xanh.
- Phù hợp khí hậu địa phương Mùa mưa Hải Phòng thường kéo dài. Mái Nhật thoát nước nhanh, tránh ứ đọng. Mùa hè nóng ẩm, nhà vẫn thoáng mát.
- Tiết kiệm chi phí Chỉ một tầng nên móng đơn giản hơn. Khung kết cấu nhẹ, giảm chi phí vật liệu và nhân công.
- Không gian sống thoải mái Cửa sổ lớn, cửa kính mở rộng. Ánh sáng tự nhiên tràn ngập. Không khí lưu thông tốt, ít cần điều hòa.
- Dễ bố trí công năng Phù hợp gia đình 3–5 người. Đảm bảo riêng tư mà vẫn kết nối các khu vực.


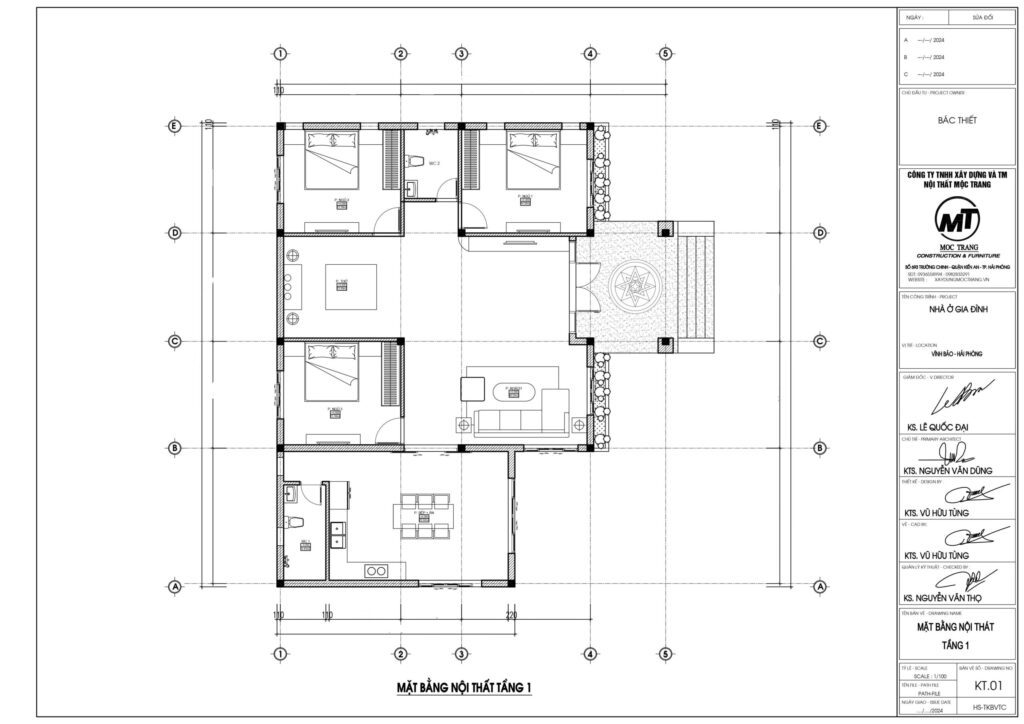
Mẫu nhà mái Nhật 1 tầng 160m² thực tế tại Vĩnh Bảo
Công trình của gia đình bác Thiết là ví dụ điển hình. Diện tích sử dụng 160m² được bố trí khoa học, tiện lợi.
Bố trí chính:
- Phòng khách rộng, liên thông phòng thờ.
- 3 phòng ngủ thoáng đãng, đón sáng tốt.
- Phòng bếp + khu vực ăn uống hiện đại.
- Nhà vệ sinh khép kín tiện nghi.
- Sân trước và sân sau rộng rãi.
Nội thất dùng gỗ tự nhiên kết hợp vật liệu hiện đại. Tông màu nâu chủ đạo mang lại cảm giác ấm áp, sang trọng. Cửa kính lớn mở ra sân vườn, giúp không gian luôn tươi mới.

Quy trình thi công nhà mái Nhật 1 tầng tại Mộc Trang
Mộc Trang luôn làm việc chuyên nghiệp tại Hải Phòng. Quy trình rõ ràng, minh bạch:
- Khảo sát hiện trạng và lắng nghe nhu cầu.
- Tư vấn ý tưởng, lập bản vẽ 3D miễn phí.
- Ký hợp đồng thi công trọn gói.
- Thi công phần thô → hoàn thiện → lắp nội thất.
- Nghiệm thu, bàn giao đúng tiến độ.
Chúng tôi sử dụng vật liệu chất lượng cao. Đội ngũ giám sát chặt chẽ. Đảm bảo công trình bền vững theo thời gian.
Xem thêm:
Kết luận
Nhà ở mái Nhật 1 tầng là giải pháp cân bằng giữa thẩm mỹ, tiện ích và chi phí. Mẫu 160m² tại Vĩnh Bảo cho thấy rõ điều đó. Gia đình bạn sẽ có tổ ấm đẹp, thoáng mát, phù hợp khí hậu Hải Phòng.
Nếu bạn đang tìm đơn vị thi công nhà trọn gói uy tín tại Hải Phòng, Công ty TNHH Xây dựng và Thương mại Nội thất Mộc Trang sẵn sàng đồng hành. Chúng tôi cam kết chất lượng cao, tiến độ nhanh, giá cả hợp lý.
Liên hệ ngay để được tư vấn miễn phí:
- Hotline: 0936 558 994 – 0984 927 618
- Địa chỉ: Số 693 Trường Chinh, P. Quán Trữ, Q. Kiến An, TP. Hải Phòng
- Website: https://xaydungmoctrang.vn/
- Fanpage: https://www.facebook.com/xaydungmoctrang.hp
Hãy để Mộc Trang giúp bạn xây dựng tổ ấm mơ ước tại Hải Phòng!


















Review THIẾT KẾ NHÀ Ở MÁI NHẬT 1 TẦNG VỚI DIỆN TÍCH 160m2
Chưa có đánh giá nào.