Trong những năm gần đây, mẫu biệt thự 2 tầng mái nhật đang trở thành lựa chọn hàng đầu của nhiều chủ đầu tư tại Việt Nam. Không chỉ mang vẻ đẹp thanh thoát, kiến trúc này còn đáp ứng trọn vẹn nhu cầu về công năng và khí hậu nhiệt đới. Vừa qua, đội ngũ kiến trúc sư tại Công ty Xây dựng Mộc Trang đã có buổi làm việc trực tiếp cùng anh Hùng để kiến tạo nên phương án thiết kế tối ưu cho tổ ấm của gia đình anh.
Tại sao biệt thự 2 tầng mái nhật lại được ưa chuộng đến vậy?
Kiến trúc mái Nhật có nguồn gốc từ xứ sở hoa anh đào. Khi về Việt Nam, nó được biến tấu linh hoạt để phù hợp khí hậu địa phương. Mẫu biệt thự 2 tầng mái nhật hiện đại chú trọng vào không gian sống tiện nghi.
Mái Nhật có độ dốc vừa phải, giúp tổng thể ngôi nhà trông rất cân đối. Đây là điểm nhấn giúp công trình vừa thanh thoát, vừa giữ được nét bề thế.

Biệt thư 2 tầng mái Nhật
Dự án thiết kế biệt thự 2 tầng mái nhật cho gia đình anh Hùng
Mỗi ngôi nhà là một câu chuyện riêng. Với anh Hùng, ngôi nhà không chỉ là nơi để che mưa che nắng mà là nơi gắn kết các thành viên trong gia đình nhiều thế hệ. Qua buổi trao đổi, chúng tôi đã thấu hiểu những tâm tư của anh để đưa ra phương án thiết kế sát thực tế nhất.
1. Nhu cầu và mong muốn của gia chủ
Anh Hùng đặt ra những tiêu chí khắt khe cho ngôi nhà tương lai của mình:
-
Thẩm mỹ: Kiến trúc nhà biệt thự 2 tầng mái nhật phải mang nét đẹp bền bỉ, không bị lỗi mốt theo thời gian.
-
Công năng: Tối ưu không gian sinh hoạt, đảm bảo sự riêng tư cho từng thành viên nhưng vẫn có không gian chung ấm cúng.
-
Ánh sáng và không khí: Tận dụng tối đa nguồn năng lượng tự nhiên, giảm thiểu sự bí bách.
-
Phong thủy: Bố trí các phòng chức năng theo hướng tốt, đón vượng khí và tài lộc cho gia đình.
2. Giải pháp kiến trúc và mặt tiền
Đội ngũ kiến trúc sư đã đề xuất phương án biệt thự 2 tầng mái nhật với sự kết hợp hài hòa giữa các vật liệu hiện đại:
-
Hệ mái: Sử dụng ngói màu xanh ghi cao cấp, xếp lớp tinh tế, tạo hiệu ứng thị giác ấn tượng.
-
Màu sắc: Tông màu trắng chủ đạo kết hợp với các đường phào chỉ nhẹ nhàng, tinh giản, loại bỏ sự rườm rà của phong cách cổ điển truyền thống.
-
Vật liệu: Hệ thống cửa kính khung nhôm Xingfa bản lớn giúp mở rộng tầm nhìn ra sân vườn, mang thiên nhiên vào tận phòng khách.

Xem thêm: +20 mẫu thiết kế nhà mái Thái đẹp Hải Phòng
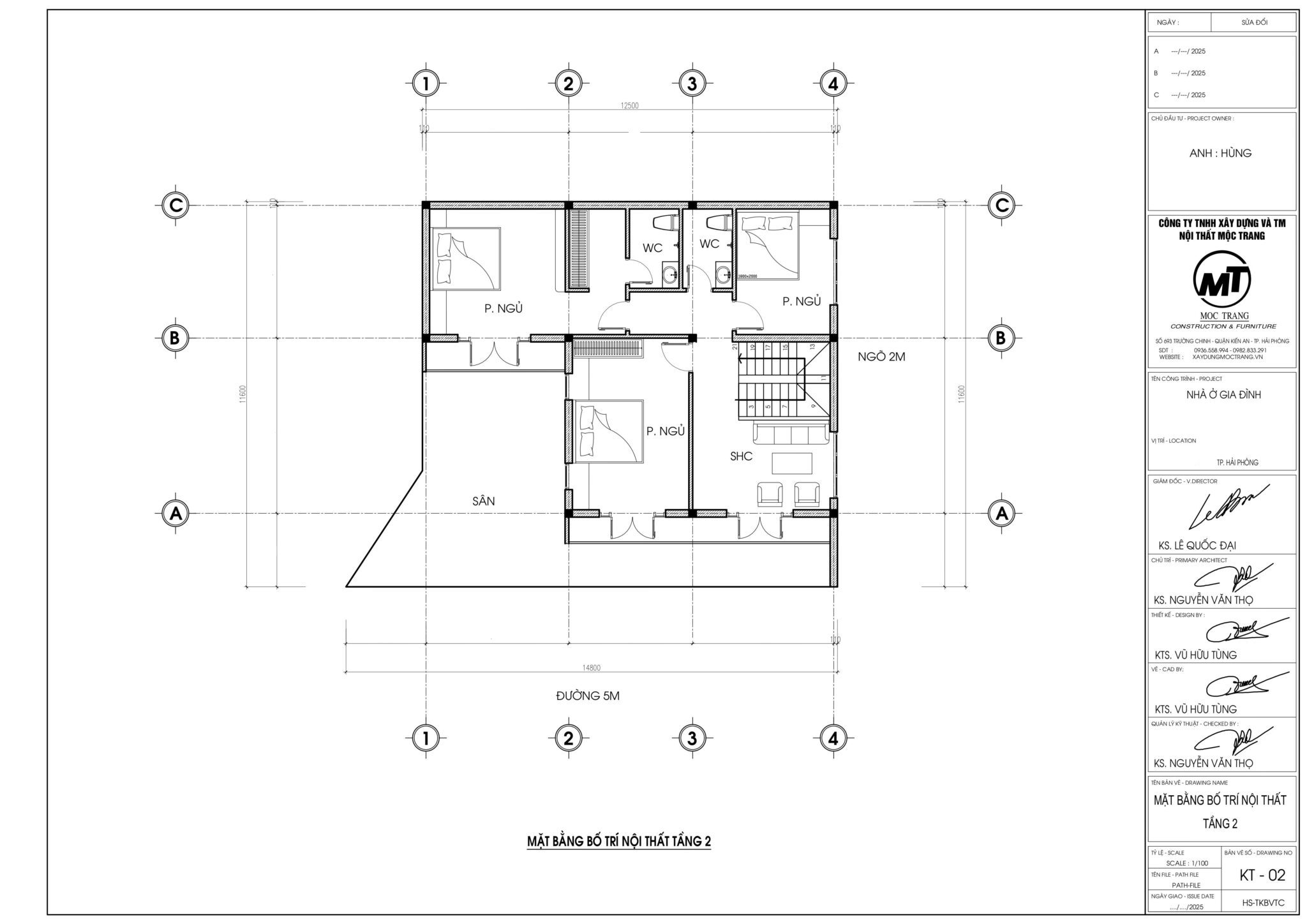
Phân tích công năng chi tiết của mẫu biệt thự 2 tầng mái nhật
Một thiết kế đẹp phải đi đôi với sự tiện dụng. Dưới đây là cách bố trí mặt bằng khoa học mà Mộc Trang đã tư vấn cho anh Hùng:
| Tầng | Các phòng chức năng | Đặc điểm nổi bật |
| Tầng 1 | Phòng khách, Bếp & Phòng ăn, 1 Phòng ngủ, Phòng thờ, Sảnh phụ | Không gian mở, thuận tiện cho người lớn tuổi đi lại và thờ cúng trang nghiêm. |
| Tầng 2 | 3 Phòng ngủ, Phòng sinh hoạt chung, Ban công lớn | Khu vực nghỉ ngơi riêng tư, ban công rộng giúp đối lưu không khí cực tốt. |
Việc bố trí phòng thờ ngay tại tầng 1 là một giải pháp tâm linh thường thấy ở các vùng quê hoặc gia đình có người cao tuổi, giúp việc nhang khói trở nên thuận tiện và ấm cúng hơn. Trong khi đó, tầng 2 là “vương quốc” nghỉ ngơi với các phòng ngủ được thiết kế theo cá tính riêng của từng thành viên.


Ưu điểm vượt trội của biệt thự mái nhật
Dưới đây là những lợi ích thực tế khi bạn chọn kiểu nhà này:
Chống nóng và thoát nước hiệu quả
Biệt thự 2 tầng mái nhật có khả năng cách nhiệt rất tốt. Vào mùa hè, không gian bên trong luôn giữ được sự thoáng mát. Độ dốc mái vừa phải giúp thoát nước nhanh, tránh tình trạng thấm dột.
Thẩm mỹ hiện đại và bền bỉ
Phong cách này đề cao sự tối giản nhưng vẫn đầy lôi cuốn. Biệt thự mái nhật mang lại cảm giác bình yên và thư thái. Nó cũng rất phù hợp với điều kiện thời tiết khắc nghiệt tại Việt Nam.
Kết luận
Mẫu thiết kế biệt thự 2 tầng mái nhật của gia đình anh Hùng không chỉ là một công trình kiến trúc mà còn là biểu tượng của sự thịnh vượng và hạnh phúc. Với sự kết hợp giữa thẩm mỹ hiện đại và công năng khoa học, đây chắc chắn sẽ là không gian sống lý tưởng mà bất cứ ai cũng hằng ao ước.
Nếu bạn đang có ý định xây dựng tổ ấm và cần một đơn vị tư vấn tận tâm, chuyên nghiệp, đừng ngần ngại liên hệ với chúng tôi. Đội ngũ Mộc Trang luôn sẵn sàng đồng hành cùng bạn từ khâu lên ý tưởng đến khi bàn giao chìa khóa trao tay.
Bạn có muốn nhận báo giá chi tiết và tham khảo thêm các mẫu biệt thự 2 tầng mái nhật hiện đại nhất hiện nay không?
Xem thêm: THIẾT KẾ NHÀ VILLA 3 TẦNG HIỆN ĐẠI _ THUỶ NGUYÊN
Thông tin liên hệ:
✨ Mộc Trang Construction & Furniture – Đồng hành cùng bạn kiến tạo tổ ấm bền vững.
-
Hotline: 0936 558 994 – 0984 927 618
-
Trụ sở: 693 Trường Chinh, P Kiến An, Hải Phòng
-
Website: xaydungmoctrang.vn











Review Thiết Kế Biệt Thự 2 Tầng Mái Nhật – Buổi Trao Đổi Cùng Anh Hùng
Chưa có đánh giá nào.