Trong quá trình xây dựng một ngôi nhà 3 tầng cho gia đình anh Công tại An Dương, Hải Phòng, công đoạn thi công ép cọc bê thông là một trong những bước quan trọng và phức tạp. Việc này đòi hỏi sự chính xác và cẩn thận để đảm bảo tính an toàn và độ bền cho công trình. Dưới đây là một cái nhìn tổng quan về quy trình thi công ép cọc bê tông của công trình.
1. Chuẩn bị trước thi công
Trước khi bắt đầu công việc,đội ngũ kỹ sư nhà Mộc Trang đã lên kế hoạch chuẩn bị các bước thi công. Đầu tiên là kiểm tra lại bản vẽ kỹ thuật để đảm bảo rằng tất cả các chi tiết và kích thước đều đúng như yêu cầu. Sau đó, vị trí của các điểm ép cọc cần được xác định chính xác trên bản vẽ và trên thực địa.

2. Ép cọc bê thông
Sau khi cọc đã được đặt vào vị trí, quá trình ép cọc bắt đầu. Các máy móc chuyên dụng sẽ được sử dụng để ép cọc xuống đất với áp lực cao, tạo ra sức ép lớn nhằm đảm bảo rằng cọc được chôn sâu vào lớp đất chắc chắn dưới lòng đất. Có 2 hình thức ép cọc bê tông là ép tải và ép neo. Tuỳ vào thiết kế kỹ thuật mà mỗi công trình sẽ sử dụng các hình thức khác nhau.

Hình thức ép neo cọc bê tông
3. Kiểm tra và điều chỉnh
Sau khi cọc đã được ép xuống độ sâu đủ theo yêu cầu, công nhân sẽ tiến hành kiểm tra lại vị trí và độ sâu của từng cọc. Bất kỳ điều chỉnh nào cần thiết sẽ được thực hiện để đảm bảo rằng tất cả các cọc đều được đặt ở đúng vị trí và độ sâu.

Quá trình thi công ép cọc bê tông cho mẫu nhà lô 3 tầng
4. Hoàn thiện
Sau khi tất cả các cọc đã được ép và kiểm tra, quá trình thi công cọc bê thông sẽ hoàn thành. Các cọc sau đó sẽ được cắt đều và làm sạch để chuẩn bị cho các công đoạn xây dựng tiếp theo của ngôi nhà.

Thi công ép cọc bê tông hoàn thiện

Hoàn thiện quá trình đập đầu cọc bê tông
Xem thêm: Thiết kế nhà lô phố hiện đại
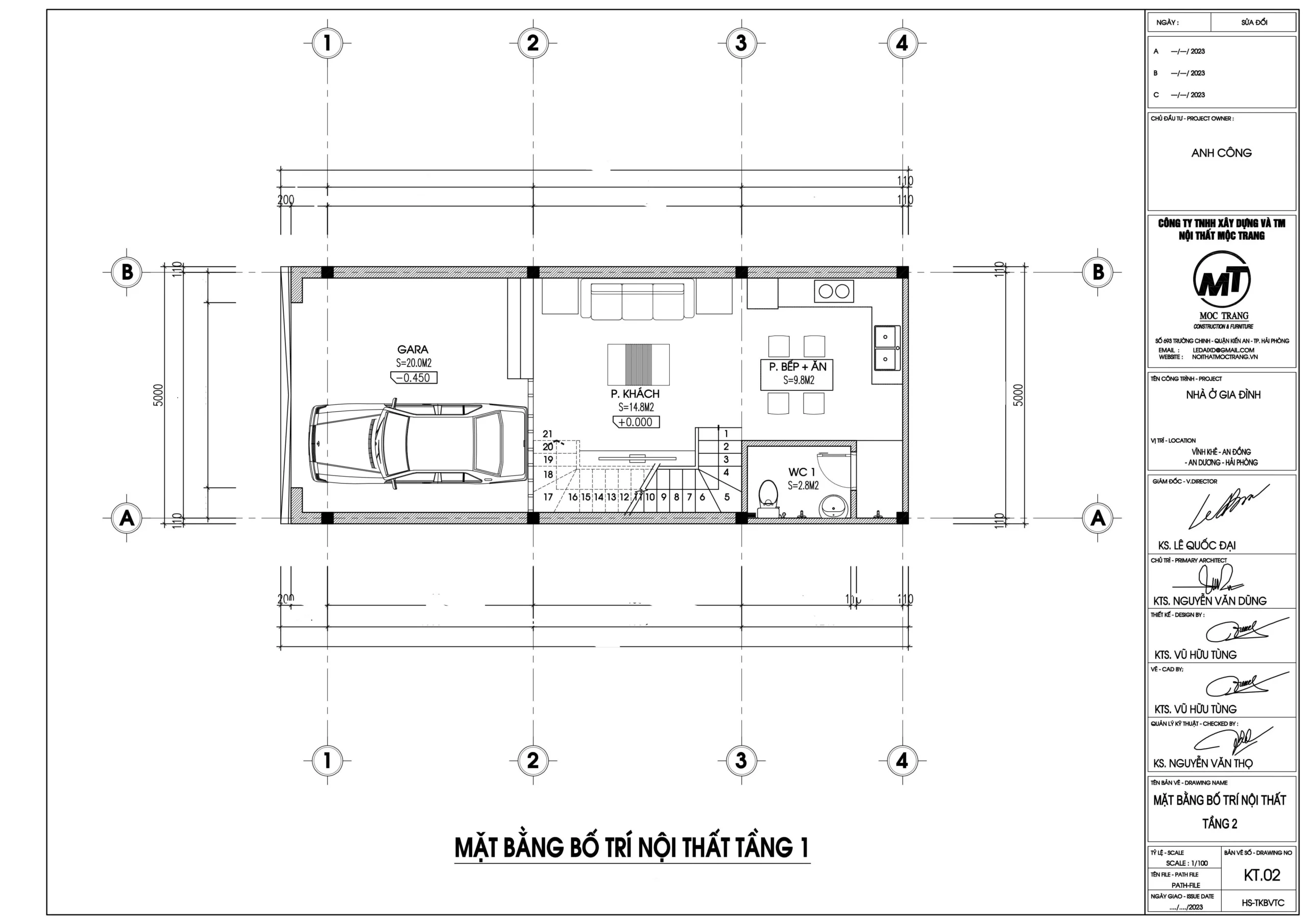
Chi phí cho mẫu nhà lô 50m2 3 tầng
Trong quá trình thi công này, việc sử dụng máy móc và công nghệ hiện đại là rất quan trọng để đảm bảo tính chính xác và hiệu quả trong công việc. Đồng thời, đội ngũ KTS, kỹ sư nhà Mộc Trang luôn tuân thủ các tiêu chuẩn kỹ thuật và an toàn. Đây là điều không thể thiếu để đảm bảo rằng công trình được thực hiện một cách an toàn, chính xác.
Để sở hữu cho gia đình mình một ngôi nhà đảm bảo về kỹ thuật, công năng và thẩm mỹ, Quý khách hàng liên hệ qua Hotline 0936 558 994 để được tư vấn nhé!
———————————————————————————————————————————————————————————————————————
Công ty TNHH xây dựng và nội thất Mộc Trang – Đơn vị thiết kế và thi công xây dựng trọn gói 𝗰𝗵𝗮̂́𝘁 𝗹𝘂̛𝗼̛̣𝗻𝗴 – 𝘂𝘆 𝘁𝗶́𝗻 tại Việt Nam.
Hotline: 0936 558 994 – 0984 927 618
Trụ sở: Số 693 Trường Chinh, P Quán Trữ, Q Kiến An, TP Hải Phòng
Website: https://xaydungmoctrang.vn/





Review Thi công ép cọc bê tông cho mẫu nhà lô 3 tầng hiện đại
Chưa có đánh giá nào.