Tại các thành phố lớn, quỹ đất ngày càng hẹp là trở ngại để xây nhà rộng rãi hiện nay. Chính vì thế, những mẫu nhà ống với diện tích 60m2 là sự lựa chọn phổ biến của nhiều người. Đặc biệt, với bố cục 4x15m 3 tầng, ngôi nhà sẽ tối ưu diện tích và đảm bảo tiện nghi. Tuy nhiên, bố trí không gian trong nhà là một điều không hề dễ dàng. Hiểu được điều này, Xây dựng Mộc Trang xin chia sẻ những mẫu thiết kế nhà 3 tầng 60m2 4x15m đẹp và phong cách. Cùng với đó là cách bố trí không gian từng khu vực trong nhà
Mục lục
- 1 Xu hướng thiết kế nhà 60m2 4x15m 3 tầng
- 2 Ưu điểm và nhược điểm của mẫu nhà 3 tầng 60m2 đẹp 4×15
- 3 Thiết kế nội thất của mẫu nhà 3 tầng 60m2 4x15m
- 4 Những mẫu thiết kế nhà 3 tầng 60m2 4x15m đẹp và phong cách
- 4.1 Mẫu thiết kế nhà 3 tầng 60m2 4x15m có giếng trời
- 4.2 Mẫu thiết kế nhà 3 tầng 60m2 4x15m thiết kế mái bằng
- 4.3 Mẫu nhà 3 tầng 60m2 mặt tiền 4m phong cách Cổ Điển
- 4.4 Mẫu thiết kế nhà 60m2 4x15m phong cách Tân Cổ Điển
- 4.5 Mẫu nhà 3 tầng 60m2 mặt tiền 4m có gara
- 4.6 Mẫu nhà ống đẹp 3 tầng 60m2 mặt tiền 4m có 1 tum
- 4.7 Mẫu nhà ống đẹp 3 tầng 60m2 mặt tiền 4m đơn giản, thoáng đãng
Xu hướng thiết kế nhà 60m2 4x15m 3 tầng
Hiện đại, bối cảnh đô thị hóa ngày càng gia tăng nên quỹ đất ngày càng hạn hẹp. Vì thế việc xây dựng nhà ống 60m2 3 tầng đã trở thành một xu hướng phổ biến. Đặc biệt, những mẫu thiết kế nhà 60m2 4x15m 3 tầng là sự lựa chọn phổ biến. Mẫu nhà này không chỉ đáp ứng nhu cầu về không gian sống. Đồng thời còn mang lại tính thẩm mỹ cao.
Tuy nhiên, đa phần các gia chủ vẫn ưu tiên thiết kế đảm bảo sự thoáng đãng, rộng rãi. Do đó, lối kiến trúc hiện đại, tiện nghi hoặc tối giản là phong cách thiết kế phù hợp nhất. Bên cạnh đó, những phong cách thiết kế hơi hướng thiên nhiên, thô mộc cũng là sự lựa chọn tuyệt vời. Chúng ta có thể kể đến phong cách như Wabi Sabi, Scandinavian hay Địa Trung Hải. Những phong cách này ngoài đem lại cảm giác ấm áp, gần gũi cho ngôi nhà. Còn thể hiện được sự mới lạ, sáng tạo, độc đáo trong không gian.

Ưu điểm và nhược điểm của mẫu nhà 3 tầng 60m2 đẹp 4×15
Ưu điểm nhà 3 tầng 60m2 mặt tiền 4m
- Tận dụng tối đa không gian sống với diện tích đất hạn chế.
- Đa dạng phong cách thiết kế, phù hợp với nhiều sở thích khác nhau.
- Chi phí xây dựng hợp lý so với các mẫu nhà có diện tích lớn hơn.
- Có thể kết hợp không gian kinh doanh tại tầng trệt, tăng nguồn thu nhập cho gia đình.
Nhược điểm mẫu nhà 3 tầng 60m mặt tiền 4m
- Diện tích mỗi tầng hạn chế, có thể gây cảm giác chật chội nếu bố trí không hợp lý.
- Cần thiết kế thông minh để đảm bảo đủ ánh sáng và thông gió tự nhiên.
- Khó có không gian riêng tư cho từng thành viên trong gia đình.
- Việc di chuyển giữa các tầng có thể gây bất tiện, đặc biệt với người cao tuổi hoặc trẻ nhỏ.
Mặc dù có những nhược điểm nhất định, nhưng với các kiến trúc sư giàu kinh nghiệm hoàn toàn có thể khắc phục. Ngoài ra, KTS sẽ tối ưu hóa không gian sống trong mẫu thiết kế nhà 4x15m 60m2 3 tầng. Việc lựa chọn vật liệu, màu sắc và bố trí nội thất hợp lý sẽ giúp căn nhà trở nên rộng rãi, thoải mái hơn. Đồng thời, việc tận dụng ánh sáng tự nhiên và thiết kế hệ thống thông gió hiệu quả cũng góp phần cải thiện chất lượng không gian sống.

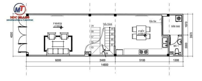
Bản vẽ thiết kế nhà 3 tầng 60m2 4x15m
Mặt bằng tầng 1 được bố trí tương đối đơn giản. Khu vực này bố trí gồm có phòng khách rộng rãi, phòng bếp và bàn ăn. Bước vào nhà đầu tiên đó là không gian phòng khách. Tiếp đến là cầu thang được thiết kế góc trái tường để thuận tiện cho việc di chuyển. Mang lại không gian sinh hoạt thoải mái nhất cho gia đình.
Không gian tiếp nối với cầu thang là nhà bếp và phòng ăn. Sau cùng là nhà vệ sinh chung cho tầng 1.

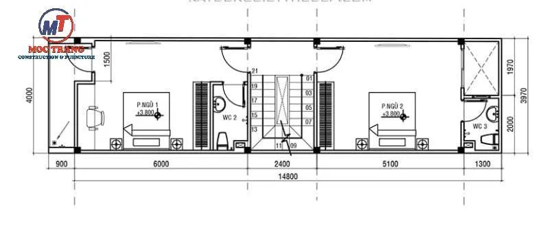
Tầng 2 được bố trí gồm 2 phòng ngủ. 1 phòng ngủ là của bố mẹ và 1 phòng ngủ cho cậu con trai út trong gia đình. Cả 2 phòng ngủ đều được thiết kế nhà vệ sinh khép kín bên trong. Thiết kế này sẽ thuận tiện hơn trong việc sử dụng.

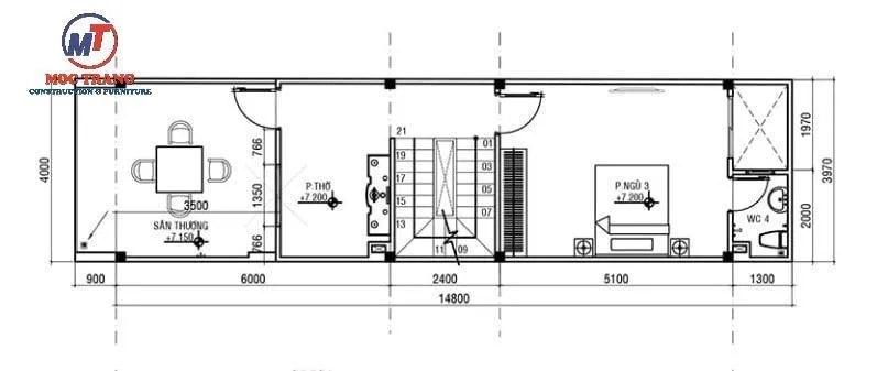
Tầng 3 của mẫu thiết kế nhà 3 tầng 4×15 được kiến trúc sư bố trí không gian thờ cùng và 1 phòng ngủ cho chị gái lớn. Nhà vệ sinh cũng được thiết kế khép kín trong phòng. Phòng thờ được đặt cạnh cầu thang và hướng ra sân thượng. Giúp cho không gian luôn yên tĩnh.

Thiết kế nội thất của mẫu nhà 3 tầng 60m2 4x15m
Phòng khách sang trọng của nhà 3 tầng 60m2
Thiết kế phòng khách vô cùng sang trọng với các đồ dùng nội thất và các vật dụng trang trí. Một bộ sofa bằng chất liệu nỉ cao cấp đặt cạnh góc tường. Tối ưu được diện tích sử dụng cũng như mang đến sự hài hòa cho toàn bộ không gian.
Chỉ với chi tiết đèn trần pha lê mà trông ngôi nhà sang trọng và lung linh hơn. Tường được ốp gạch vừa tạo điểm nhấn vừa giúp cho không gian phòng khách độc đáo, mới lạ hơn.

Phòng bếp kết hợp với phòng ăn đầy đủ tiện nghi
Phòng bếp sử dụng 2 tone màu chính là màu trắng và màu xanh. Hai màu sắc này giúp cho phòng bếp sáng bóng, sạch sẽ và rộng rãi hơn. Với thiết kế hẹp chiều ngang như nhà 60m2 3 tầng 4×15 thì tủ bếp hình chữ L là lựa chọn phù hợp. Vẫn có thể bố trí đầy đủ tiện nghi mà không gian bếp vẫn rộng và thoáng.

Phòng ngủ vợ chồng của thiết kế nhà 3 tầng 4×15
Phòng ngủ của vợ chồng được bố trí ở tầng 2 rộng rãi và ấm áp. Gam màu nâu trầm bao quanh toàn bộ căn phòng. Mang đến cảm giác nhẹ nhàng, thoải mái sau mỗi ngày làm việc mệt mỏi. Nội thất trong phòng cũng rất đơn giản. Điểm nhấn đặc biệt của phòng là bức tranh được treo ở đầu giường. Mang một nét đẹp tiềm ẩn như chính không gian này vậy.

Phòng ngủ ngộ nghĩnh của cậu con trai út
Đây là món quà mà cha mẹ muốn dành tặng cho cậu con trai của mình. Vốn là một người tinh nghịch và thích biển. Vì vậy kiến trúc sư đã lựa chọn màu xanh làm màu sắc chủ đạo cho không gian của bé. Từ bàn học, tủ đồ, giá sách cho đến chăn ga đều gợi cho cậu bé sự hứng thú.

Phòng ngủ của chị gái lớn trong gia đình
Là người không thích sự cầu kỳ hay rườm rà nên phòng ngủ của cô con gái lớn trong gia đình cũng được thiết kế rất đơn giản. Tone màu chủ đạo là màu trắng sáng nhẹ nhàng. Một chút nhấn nhá từ họa tiết kẻ caro của gối ôm hay những bức tranh treo tường cũng đủ để phòng ngủ cuốn hút.

Những mẫu thiết kế nhà 3 tầng 60m2 4x15m đẹp và phong cách
Mẫu thiết kế nhà 3 tầng 60m2 4x15m có giếng trời
Thiết kế giếng trời là lựa chọn phổ biến cho những ngôi nhà ống có diện tích bề ngang hạn chế. Giếng trời mang nhiều ưu điểm bởi không chỉ giúp làm sáng tỏ không gian trong nhà. Từ đó tránh cảm giác u ám mà còn tiết kiệm năng lượng.
Khi thiết kế giếng trời cho mẫu nhà ống 3 tầng với mặt tiền 4m, việc chọn lựa chất liệu cẩn thận và khả năng chống thấm trong mùa mưa rất quan trọng. Gia đình cũng có thể xem xét việc thiết kế mái che cho khu vực này. Mái che sẽ điều chỉnh mức độ ánh sáng đi vào nhà một cách linh hoạt.

Mẫu thiết kế nhà 3 tầng 60m2 4x15m thiết kế mái bằng
Thiết kế mái bằng cho mẫu nhà 3 tầng 60m2 được ưa chuộng bởi sự vững chắc và độ bền bỉ. Ngoài ra, mẫu nhà này rất linh hoạt trong việc thể hiện nhiều phong cách thiết kế khác nhau. Bề mặt mẫu nhà được thiết kế theo phong cách thiết kế hiện đại. Thiết kế này tập trung vào việc tạo không gian mở để đón ánh sáng tự nhiên.

Mẫu nhà 3 tầng 60m2 mặt tiền 4m phong cách Cổ Điển
Thiết kế nhà ở theo lối kiến trúc Cổ Điển là xu hướng phổ biến ở các thành phố lớn. Những ngôi nhà thường được thiết kế với tông màu trắng tinh tế. Kết hợp với những đường chỉ phào mềm mại. Tất cả tạo ra một diện mạo vô cùng sang trọng và tinh tế.
Mẫu nhà cổ điển 3 tầng 60m2 4x15m nổi bật với sự cân nhắc độ không gian và hình khối trang trí. Những đường nét hoa văn uốn lượn mềm mại trên bức tường. Cột nhà và ban công tạo nên một vẻ đẹp xa hoa và quý phái cho ngôi nhà.

Mẫu thiết kế nhà 60m2 4x15m phong cách Tân Cổ Điển
Với phong cách Tân Cổ Điển đặc trưng, mẫu thiết kế nội thất nhà ống 3 tầng với chiều ngang 4m đang dẫn đầu trong các xu hướng thiết kế gần đây. Mặt tiền nhà độc đáo với các đường phào tinh tế và hoa văn tỉ mỉ, kết hợp với hệ mái bề thế, tạo ra vẻ đẹp tổng thể vô cùng thẩm mỹ.
Ngoài ra, việc sử dụng vật liệu chất lượng cao và kiến trúc cứng cáp giúp ngôi nhà này tồn tại với thời gian mà không bị lỗi thời.

Mẫu nhà 3 tầng 60m2 mặt tiền 4m có gara
Nhà ống thường có giới hạn về chiều ngang, vì vậy, khi xem xét việc thiết kế gara ôtô, cần phải có sự cân nhắc kỹ lưỡng để đảm bảo tính hợp lý cho toàn bộ công trình. Ví dụ, trong mẫu nhà ống đẹp 3 tầng 60m2, việc bố trí gara tầng hầm đã trở thành lựa chọn phổ biến. Vì nó tạo ra một không gian rộng rãi và thoải mái. Từ đó giúp việc di chuyển trở nên thuận tiện hơn.

Mẫu nhà ống đẹp 3 tầng 60m2 mặt tiền 4m có 1 tum
Việc thiết kế tầng tum trong quá trình xây dựng ngôi nhà ống 3 tầng với bề ngang 4m mang lại nhiều lợi ích. Tầng tum không chỉ mở rộng không gian sử dụng cho gia đình mà còn tạo nên một diện mạo mới, sang trọng cho toàn bộ ngôi nhà.
Ngoài ra, đối với các mẫu nhà ống 3 tầng 60m2 với diện tích xây dựng hạn chế, việc thêm tầng tum có thể giúp tối ưu hóa diện tích sử dụng mà không tốn quá nhiều chi phí.

Mẫu nhà ống đẹp 3 tầng 60m2 mặt tiền 4m đơn giản, thoáng đãng
Mẫu nhà ống 3 tầng với chiều rộng 4m thường được xây dựng tại các thành phố lớn, nhờ thiết kế đơn giản và quy trình thi công nhanh chóng. Điều đặc biệt của lối kiến trúc này là ngôi nhà thường có chiều cao xây dựng thấp hơn so với những mẫu nhà khác.
Khi lên kế hoạch thiết kế mẫu nhà ống này, gia chủ nên tập trung vào việc tạo không gian mở để mang lại sự sang trọng và cảm giác thoáng đãng cho ngôi nhà.

Xem thêm:
- Mẫu thiết kế nhà 3 tầng 5x12m đẹp và tiện nghi
- Những mẫu nhà vườn 60m2 đẹp và phong cách
- Thiết kế nhà 1 trệt 1 lầu 5x12m đẹp và tối ưu công năng
Trên đây là tổng hợp các mẫu thiết kế nhà 3 tầng 60m2 4x15m đẹp và phong cách nhất. Cùng với đó là gợi ý bố trí không gian trong nhà. Để được tư vấn cụ thể, hãy liên hệ Xây dựng Mộc Trang theo thông tin bên dưới
Công ty TNHH xây dựng và nội thất Mộc Trang – Đơn vị thiết kế và thi công xây dựng trọn gói 𝗰𝗵𝗮̂́𝘁 𝗹𝘂̛𝗼̛̣𝗻𝗴 – 𝘂𝘆 𝘁𝗶́𝗻 tại Việt Nam.
Hotline: 0936 558 994 – 0984 927 618
Trụ sở: Số 693 Trường Chinh, P Quán Trữ, Q Kiến An, TP Hải Phòng
Website: https://xaydungmoctrang.vn/






