Hiện nay, những mẫu nhà 1 trệt 1 lầu 5x12m đang là sự lựa chọn của nhiều người. Đây là mẫu nhà có bố trí tối ưu công năng và đảm bảo tiện nghi cho gia đình. Ngoài ra, theo xu hướng, thiết kế nhà cũng có sự hiện đại, mang dấu ấn riêng của gia chủ. Vậy nên thiết kế nhà bên ngoài và nội thất bên trong như thế nào ? Hãy cùng Xây dựng Mộc Trang khám phá những mẫu thiết kế nhà 1 trệt 1 lầu 5x12m đẹp và tối ưu công năng cho gia đình. Cùng với đó là gợi ý bố trí không gian trong nhà
Mục lục
- 1 Gợi ý thiết kế ngoại thất nhà 1 trệt 1 lầu 5x12m
- 2 Bản vẽ mặt bằng nhà 1 trệt 1 lầu 5x12m
- 3 Thiết kế nội thất mẫu nhà 5x12m 1 trệt 1 lầu
- 4 Những mẫu thiết kế nhà 1 trệt 1 lầu 5x12m đẹp nhất
- 4.1 Thiết kế nhà 1 trệt 1 lầu 5x12m phong cách hiện đại
- 4.2 Thiết kế nhà 1 trệt 1 lầu 5x12m có tầng hầm
- 4.3 Thiết kế nhà 5x12m 1 trệt 1 lầu mái lệch
- 4.4 Nhà 5×12 1 trệt 1 lầu có sân thượng không gian mở
- 4.5 Mẫu nhà 1 trệt 1 lầu mặt tiền 5m sâu 12m có phòng thờ
- 4.6 Mẫu nhà 1 trệt 1 lầu diện tích 5×12 với thiết kế lệch tầng
Gợi ý thiết kế ngoại thất nhà 1 trệt 1 lầu 5x12m
Có vị trí nằm ở hướng chính tây đón trọn ánh nắng chiều gay gắt, thiết kế nhà 1 trệt 1 lầu 5x12m sử dụng gạch thông gió cho phần mặt tiền để hạn chế đi các bức xạ không tốt. Đồng thời, trao đổi không khí tự nhiên thoáng mát giữa không gian bên ngoài và không gian bên trong.
Khu vực tầng một ngoài các phòng ốc công năng thì còn có thêm một khoảng sân trước. Tại đây có thể dùng để trồng cấy một số loại cây và hoa trang trí. Ngăn cách bên ngoài với căn nhà là một chiếc hàng rào bằng sắt và gạch thông gió, bê tông.
Sang đến tầng hai, ngoại thất có sự phá cách với hình khối và ban công xanh bất đối xứng. Không gian nội thất trở nên sáng sủa, thoáng đãng. Tất cả nhờ hệ thống cửa kính và các bức tường gạch thông gió đất nung.
Dễ dàng nhận thấy, công trình lấy màu sơn trắng làm chủ đạo. Gam màu này khắc phục khuyết điểm eo hẹp của phần mặt tiền nhà ống. Hai gam màu nhấn và điểm xuyết như cam, ghi xám cũng được khắc họa rõ nét. Từ đó tạo nên dấu ấn riêng cho căn nhà và gia chủ.
Với việc phủ xanh các tầng lầu bằng dây leo và cây cối, căn nhà như một nơi nghỉ dưỡng yên bình, lý tưởng. Ngoài ra, thiết kế ngôi nhà được chọn lọc các chất liệu thân thiện với môi trường. Gia chủ có thể yên tâm sinh sống và đảm bảo sức khỏe tốt hơn.

Bản vẽ mặt bằng nhà 1 trệt 1 lầu 5x12m
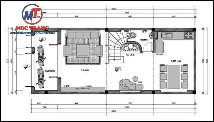
Bản vẽ tầng một
- Bản vẽ nhà 1 trệt 1 lầu 5x12m có tầng trệt gồm: Sân trước, 1 phòng khách, 1 phòng bếp + ăn, WC chung.
- Từ ngoài đi vào là khoảng sân trước tương đối rộng rãi. Khu này có thể làm chỗ đậu xe cũng như bố trí thêm cây xanh. Từ đó mang đến không gian xanh mát mẻ cho gia đình
- Tiếp đến là khu vực phòng khách được bố trí gần cửa chính. Tại khu vực này, nội thất được sắp xếp gọn gàng.
- Cầu thang được bố trí ở trung tâm với thiết kế tiểu cảnh và nhà vệ sinh ở dưới. Nhằm tối ưu diện tích tối đa và mang bầu không khí trong lành vào nhà.
- Phòng bếp và phòng ăn được thiết kế liền kề nhau ở cuối nhà. Thiết kế này giúp tránh mùi đồ ăn bay sang các phòng khác.

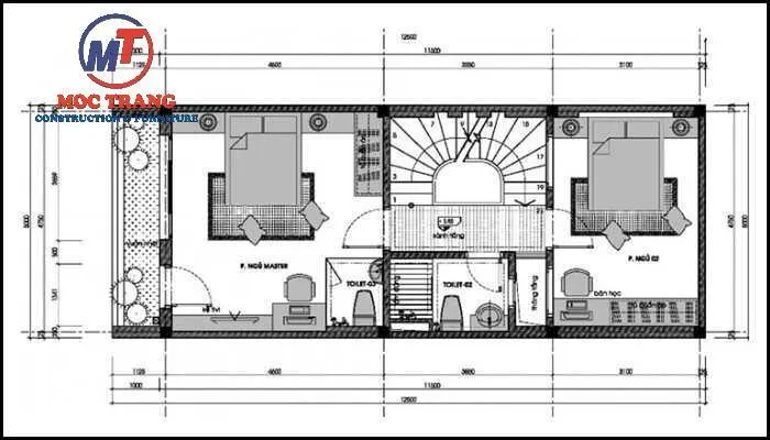
Bản vẽ tầng hai
- Mặt bằng tầng lầu gồm: 2 phòng ngủ, 2 WC.
- Từ cầu thang đi lên, bên trái là phòng ngủ master diện tích lớn có WC riêng tiện cho việc sử dụng. Thiết kế hướng ra ban công phía trước rất phù hợp cho việc nghỉ ngơi thư giãn.
- Bên phải là phòng ngủ còn lại với diện tích nhỏ hơn nhưng vẫn đảm bảo tiện nghi. Khu vực sảnh thang được tận dụng là WC kế bên khoảng thông tầng thoáng đãng.

Thiết kế nội thất mẫu nhà 5x12m 1 trệt 1 lầu
Nội thất phòng khách thanh lịch
Do có diện tích khá khiêm tốn nên phòng khách sẽ được ốp gạch thẻ màu trắng. Từ đó tạo cảm giác rộng rãi và thoáng sáng. Bàn trà và kệ tủ ưu tiên kiểu dáng đơn giản để dành khoảng trống cho phần lối đi.
Đặc biệt, một bộ ghế sofa xanh dương có chất liệu nệm êm ái. Từ đó giúp căn phòng tạo được điểm nhấn. Một số vật dụng trang trí tô điểm cho phần nội thất thêm phần nổi bật đó là kệ gỗ trưng bày, tranh ảnh và lọ hoa.

Nội thất phòng bếp không gian mở
Phòng bếp của thiết kế nhà 5x12m 1 trệt 1 lầu không gian gian mở. Khu vực này được thiết kế giếng trời kết hợp cây xanh để điều hoà ánh sáng và không khí. Tủ bếp, bàn bếp được làm bằng gỗ công nghiệp có kiểu dáng chữ L. Từ đó tạo sự thuận tiện cho việc nấu nướng, lưu trữ đồ đạc nhiều hơn.
Khu vực tường bếp được ốp gạch men họa tiết sinh động. Vật liệu này giúp làm tăng độ bền và hạn chế tình trạng nấm mốc. Các loại đèn chiếu sáng hiệu quả cho không gian nhà bếp đó là đèn thả, đèn led và đèn âm trần.

Nội thất phòng ngủ trẻ trung
Để mang đến không gian nghỉ ngơi, thư giãn tràn đầy ánh sáng và sinh khí, kiến trúc sư đã thiết kế một chiếc cửa lùa bằng kính có kích thước rộng lớn. Nằm giữa trung tâm là một chiếc giường ngủ mềm mại. Giúp cung cấp năng lượng dồi dào cho những giấc ngủ sâu.
Các đồ dùng nội thất khác như tủ quần áo, bàn trang điểm và bàn táp sẽ được làm gỗ công nghiệp để đảm bảo tính bền vững. Một chiếc gương treo tường hình tròn đóng vai trò cơi nới, tạo chiều sâu cho không gian.

Nội thất phòng tắm đẹp đơn giản
Thiết kế nội thất phòng tắm đẹp hiện đại lấy gam màu trắng làm chủ đạo. Thiết kế màu sắc này tăng khả năng bắt sáng và “ ăn gian “ diện tích. Các thiết bị vệ sinh cao cấp giúp gia chủ tận hưởng cảm giác thoải mái, dễ chịu. Ngoài ra, chúng có tính kháng khuẩn và thẩm mỹ cực cao.

Những mẫu thiết kế nhà 1 trệt 1 lầu 5x12m đẹp nhất
Thiết kế nhà 1 trệt 1 lầu 5x12m phong cách hiện đại
Thiết kế nhà 1 trệt 1 lầu 5x12m hiện đại ngày càng được nhiều gia đình ưa chuộng. Thiết kế nhà mang vẻ đẹp phóng khoáng, trẻ trung. Đồng thời đáp ứng tính tối ưu và tiện nghi công năng sử dụng của gia đình. Nếu bạn đang tìm ý tưởng không gian sống hiện đại sang trọng và ấn tượng hãy tham khảo những mẫu nhà mà Xây dựng Mộc Trang chia sẻ dưới đây


Thiết kế nhà 1 trệt 1 lầu 5x12m có tầng hầm
Không chỉ gây ấn tượng mạnh bởi ngoại thất độc đáo, mẫu nhà 1 trệt 1 lầu 5x12m có tầng hầm còn đem đến một không gian sống tiện nghi, tối ưu công năng. Đặc biệt là kiến trúc sư bố trí thêm tầng hầm. Từ đó cho phép gia đình tận dụng tối đa diện tích sử dụng. Bên cạnh đó, gia chủ còn khéo léo sử dụng khu vực tum thang. Từ đó tạo ra một sân thượng rộng thoáng đem đến không gian thư giãn nhỏ cho gia đình.


Thiết kế nhà 5x12m 1 trệt 1 lầu mái lệch
Những mẫu nhà 5×12m 1 trệt 1 lầu mái lệch mà Xây dựng Mộc Trang chia sẻ dưới đây được thiết kế theo xu hướng mới nhất hiện nay. Với thiết kế lạ mắt, mẫu nhà mái lệch đem đến một không gian sống phá cách và có điểm nhấn riêng. Sự kết hợp sáng tạo của nhiều kiểu kiến trúc đã khiến cho những mẫu nhà này mang một chất riêng.


Nhà 5×12 1 trệt 1 lầu có sân thượng không gian mở
Sân thượng là một trong những công năng phổ biến được nhiều gia đình lựa chọn hiện nay. Bởi công năng này đem đến không gian mở thoáng rộng. Đồng thời làm tăng diện tích sử dụng cho ngôi nhà. Đặc biệt là những mẫu nhà phố 5x12m 1 trệt 1 lầu có diện tích hẹp và có ít mặt thoáng. Dưới đây Xây dựng Mộc Trang chia sẻ những mẫu nhà 5×12 1 trệt 1 lầu có sân thượng ấn tượng và đẳng cấp nhất 2024. Mời quý bạn đọc tham khảo.


Mẫu nhà 1 trệt 1 lầu mặt tiền 5m sâu 12m có phòng thờ
Mẫu nhà 1 trệt 1 lầu mặt tiền 5m sâu 12m có phòng thờ được bố trí các không gian thuận tiện. Từ đó tối ưu hóa các công năng sử dụng bên trong nhà. Mặc dù chỉ có một mặt thoáng, nhưng kiến trúc sư đã khéo léo thiết kế mặt tiền. Thông qua đó giúp tận dụng tối đa nguồn năng lượng tự nhiên. Phòng thờ được bố trí tại tầng tum tạo không gian riêng tư, yên tĩnh. Đây là vị trí thích hợp cho các hoạt động tâm linh trong gia đình.

Mẫu nhà 1 trệt 1 lầu diện tích 5×12 với thiết kế lệch tầng
Mẫu nhà 1 trệt 1 lầu diện tích 5×12 thiết kế lệch tầng ấn tượng với mặt tiền không gian mở kết hợp với không gian xanh. Nhằm khắc phục nhược điểm nhỏ hẹp, ít mặt thoáng của nhà phố, mẫu nhà này được KTS thiết kế tập trung lấy sáng từ mặt tiền và sân thượng. Cùng với đó là thiết kế lệch tầng tạo nên một không gian sống độc đáo và tối ưu hơn.


Xem thêm:
- Mẫu nhà 3 tầng 5x12m – Những mẫu thiết kế nhà đẹp
- Những bản vẽ nhà 2 tầng 5x12m đẹp và tiện nghi nhất
Trên đây là tổng hợp những mẫu thiết kế nhà 1 trệt 1 lầu 5x12m đẹp và tối ưu công năng. Cùng với đó là những gợi ý bố trí không gian và nội thất sao cho tiện nghi nhất. Để được tư vấn chi tiết, hãy liên hệ Xây dựng Mộc Trang theo thông tin bên dưới
Công ty TNHH xây dựng và nội thất Mộc Trang – Đơn vị thiết kế và thi công xây dựng trọn gói 𝗰𝗵𝗮̂́𝘁 𝗹𝘂̛𝗼̛̣𝗻𝗴 – 𝘂𝘆 𝘁𝗶́𝗻 tại Việt Nam.
Hotline: 0936 558 994 – 0984 927 618
Trụ sở: Số 693 Trường Chinh, P Quán Trữ, Q Kiến An, TP Hải Phòng
Website: https://xaydungmoctrang.vn/






