Một ngôi nhà rộng rãi và đầy đủ tiện nghi là điều mà ai cũng mong muốn. Tuy nhiên, không phải ai cũng đủ chi phí để xây nhà trên một khu đất lớn. Vì thế, giải pháp xây nhà 5×15 với nhiều tầng là tối ưu hơn cả. Ngoài ra mẫu nhà 5×15 với 2-3 tầng sẽ đám ứng tốt để sinh hoạt cho 5-6 người. Trong bài viết này, hãy cùng Xây dựng Mộc Trang khám phá những mẫu nhà 5x15m 3 tầng đẹp và tiện nghi nhất. Cùng với đó là những lưu ý về thiết kế và chi phí xây dựng loại nhà này.
Mục lục
Những lưu ý khi thiết kế mẫu nhà 5x15m 3 tầng
Hiện nay xây nhà 3 tầng trở thành nhu cầu phổ biến được nhiều người lựa chọn. Một mặt vừa đáp ứng quá trình sinh hoạt của đại gia đình. Đồng thời nó còn phục vụ mục đích kinh doanh. Đặc biệt khi thi công, thiết kế nhà 3 tầng 5x15m đòi hỏi tiêu chuẩn nhất định. Với mẫu nhà 5x15m 3 tầng trong quá trình thực hiện gia chủ cần chú ý đến một số vấn đề như sau:
- Phân chia bố cục kiến trúc hợp lý để đảm bảo thẩm mỹ và cân bằng phong thủy. Trong đó chú trọng mặt tiền và diện tích các tầng sử dụng.
- Ưu tiên bản vẽ nhà 3 tầng hiện đại, đơn giản nhưng tích hợp công năng.
- Cách sử dụng màu sơn ngoại thất và ánh sáng có sự hài hòa, hợp lý.
- Nên thiết kế mẫu nhà 3 tầng mặt tiền 5m dạng thông tầng. Ngoài ra nên cân nhắc phương án nhà 3 tầng 1 tum. 2 phương án này có không gian sinh hoạt thoáng đãng, dễ chịu. Bên cạnh đó nên sử dụng những ô cửa kính lớn. Từ đó hạn chế sự ngột ngạt và tăng ánh sáng cho không gian.




Xây nhà 5x15m 3 tầng mất bao nhiêu tiền
Chi phí xây nhà 3 tầng 5x15m tại Việt Nam phụ thuộc vào nhiều yếu tố như:
- Chất lượng vật liệu xây dựng càng cao thì chi phí xây dựng càng cao.
- Mức độ hoàn thiện của công trình càng cao thì chi phí xây dựng càng cao.
- Vị trí xây dựng ở thành phố, thị trấn hay nông thôn sẽ có chi phí xây dựng khác nhau.
- Giá nhân công xây dựng ở các khu vực khác nhau sẽ có sự chênh lệch.
Thông thường, chi phí xây nhà 3 tầng 5x15m tại Việt Nam dao động từ 1,3 – 2,4 tỷ đồng. Tuy nhiên, đây chỉ là mức chi phí tham khảo. Thực tế chi phí có thể thay đổi tùy thuộc vào các yếu tố trên. Nếu muốn biết mức giá chính xác hãy nên liên hệ đơn vị phụ trách thi công thiết kế.
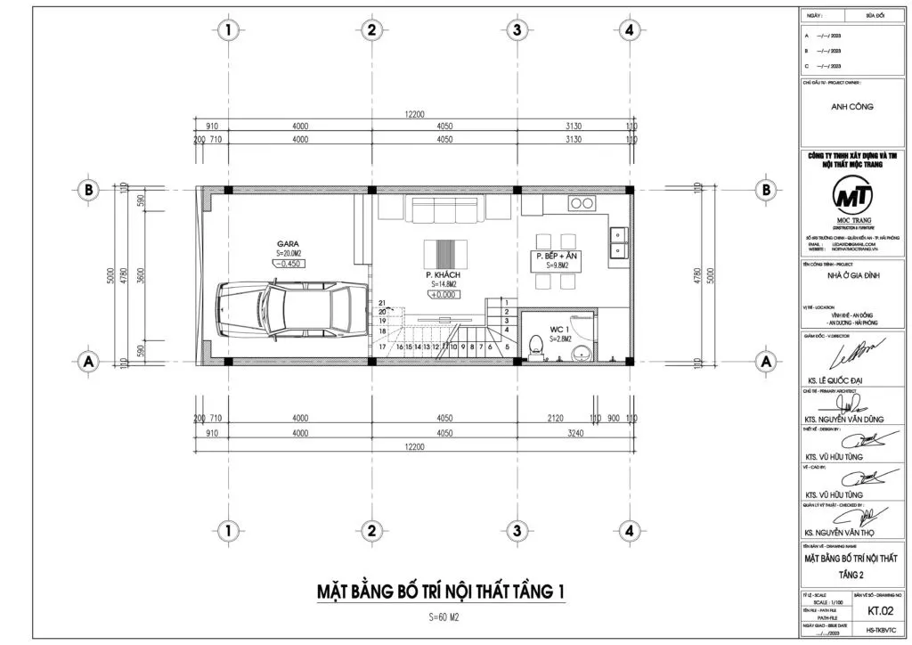
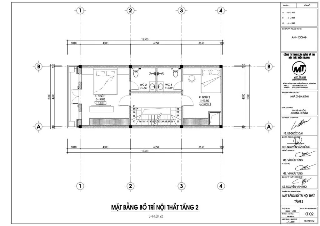
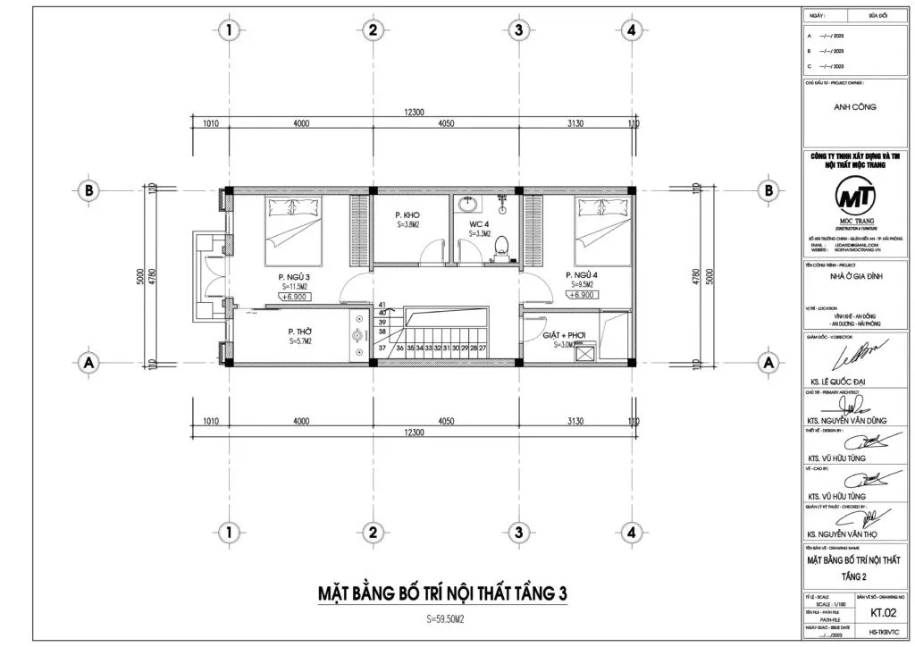
Những mẫu nhà 5x15m 3 tầng đẹp và tiện nghi
Mẫu nhà 5×15m 3 tầng hiện đại cùng với tông màu trầm
Với kiểu thiết kế 5x15m 3 tầng vừa tiết kiệm không gian mà vừa còn độc đáo, mới lạ. Cổng vào nhà được sử dụng chất liệu đá tự nhiên tạo cảm giác sang trọng, lịch lãm. Thiết kế vẫn có 2 bục để trồng cây giúp tầng 1 nhìn vào không bị nhàm chán.
Mẫu thiết kế này là sự kết hợp độc đáo về phần chất liệu và màu sắc. Thiết kế ban công và mái che đem đến một không gian tươi mát, thoải mái. Cùng với cây được trồng leo xuống làm cho căn nhà vừa nhìn vào đã thấy dịu mắt. Đồng thời giúp không gian trong nhà lúc nào cũng thoáng mát.

Mẫu nhà 5×15m 3 tầng sang trọng
Với tông màu trắng chủ đạo cùng với những đường nét tinh vi, căn nhà 5x15m 3 tầng được thiết kế theo phong cách sang trọng nhưng pha chút hiện đại mới mẻ. Trụ chính của căn nhà được thiết kế theo hình vòm cung giống một nơi uy nga, tráng lệ. Ban công các phòng có các đèn trên trần và hai bên cạnh. Thiết kế này vào buổi tối giúp căn nhà càng trở nên đặc biệt hơn.
Cổng vào sân rộng rãi, có gara để xe cùng với kết hợp chất liệu tinh tế. Thiết kế với phong cách hiện đại làm tổng quan căn nhà đặc biệt hơn. Ngoài ra còn có giếng trời ở khu vực sân thượng giúp căn nhà ấm áp, cây xanh được hấp thụ ánh nắng. Từ đó giúp chủ nhà cảm nhận được không gian tươi mát của sân thượng.

Mẫu nhà 5×15m 3 tầng mái Thái
Mái Thái là một kiểu kết hợp độc đáo giữa các kiến trúc của Thái và sự hiện đại. Tổng thể căn nhà 3 tầng được dựng lên bởi các hình khối dứt khoát, vuông vắn. Các chi tiết trên tường được khắc họa độc đáo khiến thu hút ánh nhìn. Mỗi tầng đều có ban công mà đặc biệt ở khu vực tầng ba cũng có hai bục được xây để trồng cây, tiết kiệm không gian.

Mẫu nhà 5x15m 3 tầng tông màu ấm
Một mẫu thiết kế nhà 3 tầng độc đáo, cổng chính là cổng gấp làm tiết kiệm không gian. Ngoài ra, phía bên phải là gạch thông gió làm thoáng mát không gian trong nhà. Gạch thông gió cũng được bố trí trên tầng 2 và cả gác lửng. Thiết kế này vừa có tác dụng thông gió, vừa có thể trồng cây giúp tăng thẩm mỹ ngôi nhà. Gạch và kính được kết hợp hoàn mỹ, màu trắng kem là sự lựa chọn hợp lý nhất cho tổng thể kiến trúc.

Mẫu nhà 5×15 3 tầng gần gũi với thiên nhiên
Ở thiết kế này cây xanh cũng như là chất liệu chính làm nổi bật căn nhà 3 tầng 5x15m. Khu vực cửa chính được bố trí nơi để xe và lối vào phòng khách. Gara còn được lắp các khung sắt giúp không khí thoáng mát, có ánh nắng mặt trời. Tầng hai là phòng ngủ, phòng làm việc cùng với ban công rộng rãi thích hợp để ngắm cảnh, nghỉ ngơi. Ngoài ra, bạn có thể bố trí bàn ghế cây cảnh tùy thích.

Xem thêm:
Trên đây là những mẫu nhà 5x15m 3 tầng đẹp và tiện nghi nhất. Nhờ sự hài hòa về tổng thể, thiết kế cửa sổ giúp cả căn nhà đều thoáng mát. Cùng với đó là nơi bố trí cây xanh hợp lý gần gũi với thiên nhiên. Nếu các bạn có nhu cầu được tư vấn, hãy liên hệ chúng tôi theo thông tin bên dưới
Công ty TNHH xây dựng và nội thất Mộc Trang – Đơn vị thiết kế và thi công xây dựng trọn gói 𝗰𝗵𝗮̂́𝘁 𝗹𝘂̛𝗼̛̣𝗻𝗴 – 𝘂𝘆 𝘁𝗶́𝗻 tại Việt Nam.
☎ Hotline: 0936 558 994 – 0984 927 618
🏢 Trụ sở: Số 693 Trường Chinh, P Quán Trữ, Q Kiến An, TP Hải Phòng
🌏 Website: https://xaydungmoctrang.vn/
🌏 Fanpage: https://www.facebook.com/xaydungmoctrang.hp






