Những mẫu nhà 2 tầng là sự lựa chọn phổ biến của nhiều người khi xây dựng không gian sống. Đây là mẫu nhà có thể giúp bạn bố trí với 4 phòng ngủ một cách tối ưu không gian. Từ đó đem lại sự tiện nghi và thoải mái khi sinh sống cho gia đình 5-6 người. Tuy nhiên, nhiều người băn khoăn không biết nên bố trí không gian như thế nào cho tối ưu nhất. Hiểu được điều này, Xây dựng Mộc Trang xin chia sẻ tới các bạn những mẫu nhà 2 tầng 4 phòng ngủ hiện đại và tiện nghi nhất trong bài viết dưới đây
Mục lục
- 1 Vì sao mẫu nhà 2 tầng 4 phòng ngủ hiện đại lại được ưa chuộng?
- 2 Những mẫu nhà 2 tầng 4 phòng ngủ hiện đại đẹp và tiện nghi nhất
- 2.1 Thiết kế mẫu nhà 2 tầng 4 phòng ngủ hiện đại 5×18m
- 2.2 Mẫu nhà 2 tầng 4 phòng ngủ hiện đại diện tích 5×20m
- 2.3 Thiết kế mẫu nhà 2 tầng 4 phòng ngủ diện tích 8×15m
- 2.4 Thiết kế mẫu nhà 2 tầng 4 phòng ngủ diện tích 60m²
- 2.5 Thiết kế mẫu nhà 2 tầng 4 phòng ngủ diện tích 70m²
- 2.6 Thiết kế mẫu nhà 2 tầng 4 phòng ngủ diện tích 80m²
- 2.7 Mẫu nhà mái Thái 2 tầng 4 phòng ngủ hiện đại
- 2.8 Mẫu nhà mái bằng hiện đại 2 tầng 90m2 4 phòng ngủ
- 2.9 Mẫu nhà mái lệch 2 tầng 4 phòng ngủ hiện đại
- 3 Gợi ý bố trí không gian mẫu nhà 2 tầng 4 phòng ngủ hiện đại
- 4 Những lưu ý khi thiết kế mẫu nhà 2 tầng 4 phòng ngủ hiện đại
Vì sao mẫu nhà 2 tầng 4 phòng ngủ hiện đại lại được ưa chuộng?
Mẫu nhà 2 tầng 4 phòng ngủ hiện đại là một lựa chọn phổ biến trong thiết kế nhà ở. Đây là mẫu nhà sẽ đáp ứng nhiều nhu cầu sử dụng khác nhau. Dưới đây là những lý do nổi bật khiến nhà 2 tầng trở thành ưu tiên của nhiều gia đình:
- Phù hợp gia đình đông thành viên: Thiết kế 2 tầng cung cấp không gian sống rộng rãi. Thiết kế linh hoạt trong việc bố trí các khu vực chức năng. Đây là giải pháp lý tưởng cho những gia đình nhiều thế hệ cùng chung sống. Vừa đảm bảo sự riêng tư vừa tạo sự kết nối giữa các thành viên.
- Thiết kế đơn giản, dễ dàng xây dựng: Kiến trúc nhà ống mang phong cách đơn giản. Thiết kế chủ yếu tập trung vào tính thực tế hơn là các chi tiết cầu kỳ. Điều này giúp việc thiết kế và thi công trở nên dễ dàng.
- Tiết kiệm chi phí: Mẫu nhà có kết cấu đơn giản và yêu cầu kỹ thuật không quá phức tạp. Vì thế gia chủ có thể tối ưu hóa ngân sách xây dựng. Đồng thời vẫn đảm bảo chất lượng công trình.
- Thời gian thi công nhanh chóng: Mẫu nhà thiết kế gọn gàng, dễ thi công. Thời gian hoàn thiện nhà ống 2 tầng thường ngắn hơn so với các loại hình nhà ở khác. Điều này giúp gia chủ sớm hoàn thành tổ ấm
- Dễ dàng sửa chữa và cải tạo: Cấu trúc nhà ống 2 tầng mang lại sự linh hoạt cao. Từ đó cho phép gia chủ dễ dàng thực hiện các công việc sửa chữa, cải tạo. Hoặc nâng cấp không gian sống khi có nhu cầu.

Những mẫu nhà 2 tầng 4 phòng ngủ hiện đại đẹp và tiện nghi nhất
Thiết kế mẫu nhà 2 tầng 4 phòng ngủ hiện đại 5×18m
Mẫu nhà 2 tầng 4 phòng ngủ hiện đại diện tích 5×18m ngày càng được nhiều chủ đầu tư lựa chọn. Đăc biệt trong bối cảnh quỹ đất xây dựng ngày càng thu hẹp. Điểm nổi bật trong thiết kế là sự chú trọng tạo không gian sống thoáng mát. Thiết kế chú trọng tận dụng ánh sáng tự nhiên tối ưu. Tiwf đó giúp mang lại môi trường sống thoải mái cho gia đình.

Ấn tượng đặc biệt của mẫu nhà này nằm ở thiết kế mặt tiền hiện đại. Đây là khu vực nơi cửa chính được làm từ gỗ nâu độc đáo. Từ đó mang đến sự kín đáo nhưng vẫn đảm bảo vẻ đẹp sang trọng và tinh tế. Sự phối hợp hài hòa giữa màu sắc và vật liệu, từ những chi tiết nhỏ như gạch lát đến cách bố trí ánh sáng. Tất cả đã tạo nên một tổng thể thanh lịch và hài hòa.


Mẫu nhà 2 tầng 4 phòng ngủ hiện đại diện tích 5×20m
Với diện tích 5×20m, mẫu nhà 2 tầng 4 phòng ngủ hiện đại không chỉ đáp ứng nhu cầu không gian sống rộng rãi. Đồng thời còn tạo ấn tượng mạnh mẽ bởi lối thiết kế tinh tế và hiện đại. Đây là kiểu nhà đang nhận được sự quan tâm lớn từ các gia đình Việt. Tất cả có được nhờ khả năng cân đối giữa công năng và thẩm mỹ.

Thiết kế tập trung vào các yếu tố như cửa chính, cửa sổ và hàng rào. Nổi bật với mặt tiền sử dụng tông màu trắng nhẹ nhàng kết hợp màu xám trang nhã. Thiết kế này nhămgf tạo cảm giác hài hòa và sang trọng. Những mảng tường giật cấp sáng tạo cùng gạch thông gió được bố trí khéo léo. Điều này không chỉ tăng tính thẩm mỹ mà còn giảm sự bức bí của bức tường truyền thống. Đây chính là lựa chọn lý tưởng cho các gia đình yêu thích sự tinh tế và hiện đại.


Thiết kế mẫu nhà 2 tầng 4 phòng ngủ diện tích 8×15m
Đối với mẫu nhà 2 tầng 4 phòng ngủ hiện đại diện tích 8×15m, phong cách hiện đại là điểm nhấn chủ đạo. Thiết kế này nổi bật với hệ mái bằng tinh tế. Từ đó mang lại nhiều ưu điểm về tính thẩm mỹ cũng như công năng sử dụng. Mặt tiền ngôi nhà gây ấn tượng mạnh. Tất cả nhờ sự kết hợp giữa các đường nét phá cách và vật liệu hiện đại.

Ngoại thất được thiết kế tỉ mỉ, từ các mảng tường, cửa sổ lớn đến hệ thống gạch thông gió. Tất cả được phối hợp hài hòa nhằm tạo sự thông thoáng và hấp dẫn. Bên trong, không gian được bố trí hợp lý để đáp ứng mọi nhu cầu sinh hoạt của gia đình. Đây là lựa chọn hoàn hảo dành cho những gia đình yêu thích phong cách trẻ trung. Đồng thời khát khao sự năng động và muốn khẳng định cá tính riêng.


Thiết kế mẫu nhà 2 tầng 4 phòng ngủ diện tích 60m²
Với diện tích 60m², việc thiết kế mẫu nhà 2 tầng 4 phòng ngủ hiện đại đòi hỏi sự tính toán kỹ lưỡng. Từ đó tối ưu hóa không gian mà vẫn đảm bảo tính thẩm mỹ và công năng sử dụng. Phong cách hiện đại là lựa chọn lý tưởng, giúp không gian trở nên rộng rãi. Đồng thời thoáng đãng và tiết kiệm chi phí.

Ngôi nhà có thể được thiết kế với các kiểu mái đa dạng như mái Thái. Hoặc mái Nhật hoặc mái tôn, tùy thuộc vào sở thích và ngân sách của gia đình. Sự kết hợp hài hòa giữa mặt tiền đơn giản và các vật liệu hiện đại. Ví dụ như kính, gỗ, hoặc nhôm sẽ làm nổi bật vẻ đẹp sang trọng của ngôi nhà.

Thiết kế mẫu nhà 2 tầng 4 phòng ngủ diện tích 70m²
Mẫu nhà 2 tầng 4 phòng ngủ hiện đại 70m² là lựa chọn cho những gia đình đông thành viên. Tất cả nhờ không gian rộng rãi và khả năng bố trí linh hoạt. Với diện tích này, gia chủ có thể thoải mái sáng tạo. Từ đó biến ý tưởng của mình thành hiện thực để tạo nên một tổ ấm lý tưởng.

Thiết kế tập trung vào việc tối ưu hóa diện tích sử dụng. Nổi bật với các không gian được sắp xếp hợp lý như phòng khách thoáng rộng. Ngoài ra là phòng bếp tiện nghi, và các phòng ngủ riêng tư. Kiến trúc sư có thể thêm các chi tiết trang trí ở mặt tiền. Vì dụ như ban công với lan can kính hoặc khung kim loại. Thông qua đó tăng tính thẩm mỹ và tạo điểm nhấn cho ngôi nhà.

Thiết kế mẫu nhà 2 tầng 4 phòng ngủ diện tích 80m²
Với diện tích 80m², mẫu nhà 2 tầng 4 phòng ngủ hiện đại không chỉ đảm bảo tính công năng. Đồng thời còn mang lại không gian sống đầy đủ tiện nghi và thoải mái. Thiết kế này phù hợp với những gia đình lớn. Thông qua đó đáp ứng được yêu cầu về sự hiện đại và thẩm mỹ.

Điểm nhấn của mẫu nhà này là cách bố trí mặt bằng khoa học. Nổi bật với các không gian chức năng được sắp xếp hợp lý. Từ đó tạo sự tiện lợi trong sinh hoạt hàng ngày. Ngoài ra, ngôi nhà còn được kết hợp với một khoảng sân vườn xanh mát. Chi tiết giúp không gian sống trở nên gần gũi với thiên nhiên hơn. Đây là lựa chọn hoàn hảo cho các gia đình muốn tận hưởng sự trong lành. Đồng thời yên bình mà vẫn hiện đại và sang trọng.


Mẫu nhà mái Thái 2 tầng 4 phòng ngủ hiện đại
Ngôi nhà 2 tầng mái Thái với 4 phòng ngủ được thiết kế theo phong cách hiện đại. Thiết kế sử dụng gam màu trắng nhẹ nhàng làm chủ đạo, tạo nên sự tinh tế và thanh lịch. Mặt tiền của ngôi nhà được bố trí cân đối, hài hòa. Các chi tiết phào chỉ được chăm chút tỉ mỉ, tạo nên điểm nhấn thẩm mỹ cao.
Hệ thống cửa kính và lan can kính là những yếu tố nổi bật. Điều này không chỉ mang lại vẻ đẹp hiện đại, sang trọng. Đồng thời còn giúp tận dụng tối đa ánh sáng tự nhiên. Tất cả làm cho không gian nội thất thêm phần sáng sủa và thoáng đãng. Kiến trúc tổng thể mang đến cảm giác ấm áp. Phù hợp với các gia đình mong muốn một không gian sống vừa tiện nghi vừa tinh tế.

Mẫu nhà mái bằng hiện đại 2 tầng 90m2 4 phòng ngủ
Mẫu nhà mái bằng 2 tầng 4 phòng ngủ hiện đại với diện tích 90m² được thiết kế đơn giản. Tuy nhiên đảm bảo đầy đủ công năng. Phù hợp với các gia đình yêu thích phong cách kiến trúc hiện đại và tối giản.
Hệ mái bằng được bố trí khéo léo, mang lại nhiều ưu điểm về độ bền. Đồng thời có khả năng tận dụng không gian như sân thượng hoặc khu vực trồng cây. Ngoại thất của ngôi nhà được thiết kế ấn tượng. Trong khi nội thất bên trong được bố trí hợp lý, đảm bảo sự tiện nghi và thoải mái cho cả gia đình. Đây là lựa chọn lý tưởng cho những gia chủ tìm kiếm sự hài hòa. Đặc biệt có sự phối hợp tính thực dụng và vẻ đẹp hiện đại.

Mẫu nhà mái lệch 2 tầng 4 phòng ngủ hiện đại
Thiết kế nhà 2 tầng mái lệch với 4 phòng ngủ mang phong cách hiện đại. Thiết kế trẻ trung nhưng vẫn giữ được nét sang trọng và đẳng cấp. Điểm nhấn nổi bật của mẫu nhà này là hệ thống mái lệch độc đáo. Tạo nên ấn tượng mạnh mẽ ngay từ cái nhìn đầu tiên khi nhìn vào mặt tiền.
Thiết kế kết hợp giữa các đường nét kiến trúc phá cách và việc sử dụng vật liệu cao cấp. Điều này đã làm cho ngôi nhà trở thành một không gian sống lý tưởng. Mái lệch không chỉ tăng thêm giá trị thẩm mỹ. Nó còn mang lại hiệu quả về khả năng thoát nước và chống nóng. Từ đó đáp ứng tốt nhu cầu sử dụng của các gia đình hiện đại.

Gợi ý bố trí không gian mẫu nhà 2 tầng 4 phòng ngủ hiện đại
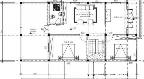
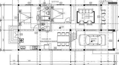
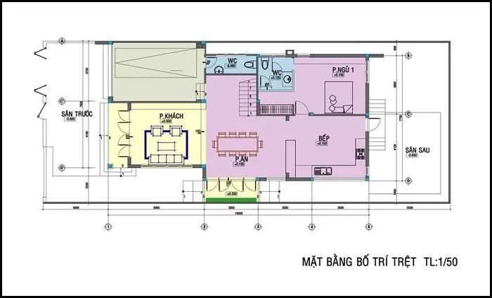
Không gian phòng khách đầy tinh tế và hấp dẫn
Phòng khách trong mẫu nhà 2 tầng 4 phòng ngủ hiện đại được thiết kế tinh tế và thu hút. Từ đó tạo ấn tượng mạnh mẽ ngay từ cái nhìn đầu tiên. Không gian được bố trí hợp lý. Nổi bật với sự kết hợp hài hòa giữa nội thất cao cấp và cách sắp xếp thông minh. Điểm nhấn của phòng khách là việc sử dụng nội thất gỗ tự nhiên. Từ đó mang lại cảm giác sang trọng và ấm cúng cho cả căn phòng
Hệ thống chiếu sáng được thiết kế hiện đại. Tại đây sử dụng đèn trần tinh xảo và các đèn ốp tường được bố trí hợp lý. Những chiếc đèn không chỉ đảm bảo cung cấp ánh sáng đầy đủ. Thiết kế còn góp phần tạo nên một không gian ấm áp và gần gũi. Tạo sự phù hợp cho việc tiếp đón khách hoặc các buổi sinh hoạt gia đình.

Khu vực phòng bếp và phòng ăn của ngôi nhà
Phòng bếp và phòng ăn trong mẫu nhà này là một không gian rộng rãi và tiện nghi. Tại đây được thiết kế để mang lại sự thoải mái tối đa cho gia đình. Phòng ăn nổi bật với bộ bàn tròn và ghế gỗ được thiết kế tinh xảo. Từ đó cảm giác thanh lịch và hiện đại.
Khu vực bếp sử dụng tủ bếp hình chữ U. Thiết kế tối ưu hóa không gian sử dụng và đảm bảo tiện ích cho người nấu ăn. Sự bố trí này mang lại sự thuận tiện trong việc chuẩn bị các bữa ăn. Đồng thời không gian mở cho phép gia đình dễ dàng tổ chức những bữa tiệc. Hoặc đón tiếp bạn bè trong không khí thoải mái và vui vẻ.

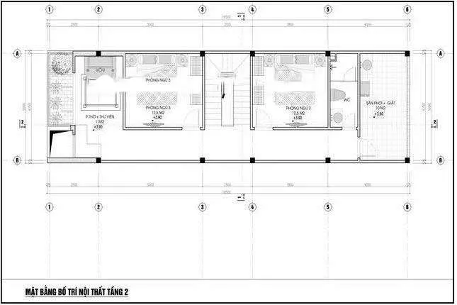
Phòng ngủ mẫu nhà 2 tầng 4 phòng ngủ hiện đại
Phòng ngủ được thiết kế tập trung vào sự thoải mái và yên tĩnh. Từ đó mang đến không gian nghỉ ngơi lý tưởng sau những giờ làm việc căng thẳng. Phòng ngủ chính rộng rãi và đầy đủ tiện nghi, được trang bị giường lớn. Ngoài ra là khu vực trang điểm riêng và hệ thống tủ âm tường thông minh. Thông qua đó giúp tối ưu hóa không gian lưu trữ.
Các phòng ngủ khác cũng được thiết kế kỹ lưỡng, với nội thất đơn giản nhưng tinh tế. Thiết kế sử dụng gam màu ấm để tạo cảm giác dễ chịu và thư giãn. Tất cả đều đảm bảo mang lại giấc ngủ ngon và không gian riêng tư cho gia đình.

Phòng tắm mẫu nhà 2 tầng 4 phòng ngủ hiện đại
Phòng tắm trong mẫu nhà này được trang bị các thiết bị hiện đại. Tại đây được thiết kế để tối ưu hóa cả về công năng lẫn thẩm mỹ. Các mảng kính lớn trên tường sơn màu sáng tạo nên sự thoáng đãng và điểm nhấn nổi bật. Hàng gạch màu nâu được lát chạy dọc theo tường, tạo hiệu ứng thị giác sang trọng và độc đáo.
Bên cạnh đó, những chậu cây nhỏ được bố trí tinh tế trong phòng tắm. Chúng không chỉ tăng thêm sức sống mà còn mang lại cảm giác gần gũi với thiên nhiên, Từ đó giúp không gian trở nên tươi mới và dễ chịu hơn. Phòng tắm này không chỉ đáp ứng nhu cầu sử dụng. Đây còn là nơi thư giãn tuyệt vời cho các thành viên trong gia đình.

Những lưu ý khi thiết kế mẫu nhà 2 tầng 4 phòng ngủ hiện đại
Ứng dụng không gian mở và ánh sáng tự nhiên
Thiết kế không gian mở là một xu hướng của mẫu nhà 2 tầng 4 phòng ngủ hiện đại. Từ đó tối đa hóa ánh sáng tự nhiên và tạo cảm giác thoáng đãng cho ngôi nhà. Việc kết nối các khu vực một cách linh hoạt giúp không gian sống rộng rãi. Đồng thời tạo cảm giác dễ chịu, thông thoámg cho người sử dụng. Những bức tường được thay thế bằng các yếu tố như vách kính hoặc cửa sổ lớn. Chúng không chỉ giúp không gian sáng sủa hơn mà còn tạo ra sự kết nối trực tiếp với cảnh quan xung quanh. Từ đó mang lại vẻ đẹp tự nhiên cho ngôi nhà.

Sử dụng nội thất đa năng và thông minh
Để tối ưu hóa không gian sống, việc sử dụng nội thất đa năng và các giải pháp lưu trữ thông minh là điều cần thiết. Những món đồ nội thất thông minh sẽ giúp không gian trở nên gọn gàng và hiện đại hơn. Đồng thời tăng tính tiện nghi cho ngôi nhà. Nội thất tối giản với gam màu trung tính không chỉ giúp tiết kiệm diện tích. Nó còn tạo cảm giác thoáng đãng, rộng rãi cho các không gian nhỏ hẹp. Việc lựa chọn những món đồ phù hợp với nhu cầu sẽ giúp ngôi nhà trở nên hiện đại và tối ưu hơn.

Chọn lựa đơn vị thiết kế uy tín
Để đạt được một công trình hoàn hảo, việc lựa chọn đơn vị thiết kế và thi công có uy tín và năng lực là yếu tố quyết định. Đội ngũ kiến trúc sư và kỹ sư có trình độ chuyên môn cao sẽ đảm bảo các thiết kế không chỉ đáp ứng về mặt thẩm mỹ mà còn phù hợp với các yêu cầu kỹ thuật, tối ưu hóa chi phí và tiến độ thi công. Sự sáng tạo trong thiết kế kết hợp với khả năng giải quyết các vấn đề kỹ thuật một cách linh hoạt sẽ giúp gia chủ tiết kiệm chi phí xây dựng và đạt được không gian sống như ý muốn.
Xem thêm:
- Những mẫu nhà 2 tầng kết hợp kinh doanh đẹp nhất hiện nay
- Tổng hợp ý tưởng xây nhà 2 tầng 600 triệu ở nông thôn đẹp nhất
Trên đây là những mẫu nhà 2 tầng 4 phòng ngủ hiện đại và tiện nghi nhất. Cùng với đó là các gọi ý bố trí không gian trong nhà và lưu ý khi thiết kế. Để được tư vấn cụ thể, hãy liên hệ Xây dựng Mộc Trang theo thông tin bên dưới
Công ty TNHH xây dựng và nội thất Mộc Trang – Đơn vị thiết kế và thi công xây dựng trọn gói 𝗰𝗵𝗮̂́𝘁 𝗹𝘂̛𝗼̛̣𝗻𝗴 – 𝘂𝘆 𝘁𝗶́𝗻 tại Việt Nam.
Hotline: 0936 558 994 – 0984 927 618
Trụ sở: Số 693 Trường Chinh, P Quán Trữ, Q Kiến An, TP Hải Phòng
Website:https://xaydungmoctrang.vn/






