Giằng móng cọc là một trong những hạng mục quan trọng khi thi công các công trình. Đây là hạng mục ngày càng được chú trọng nhằm nâng cao tính liên kết móng nhà và nền đất. Chính vì thế việc tính toán giằng móng cần phải được thực hiện một cách chính xác. Tuy nhiên, nhiều người vẫn chưa nắm rõ việc tính toán hạng mục này ra sao cho chuẩn. Hiểu được điều này, Xây dựng Mộc Trang xin chia sẻ chi tiết tới các bạn nguyên lý và cách tính toán giằng móng cọc sao cho chuẩn trong bài viết này
Mục lục
Giằng móng cọc là gì?
Trước khi tìm hiểu chi tiết cách tính toán giằng móng cọc thì cần biết giằng móng cọc là gì. Giằng móng (hoặc dầm móng) là một bộ phận cấu kiện quan trọng trong hệ kết cấu nền móng. Nó có chức năng liên kết các phần móng lại với nhau thành một khối thống nhất. Việc sử dụng giằng móng giúp tăng cường độ ổn định, độ cứng. Đồng thời tăng cường khả năng chịu lực tổng thể cho toàn bộ công trình.
Trong thực tế thi công, thuật ngữ “dầm móng” thường được sử dụng trong trường hợp cấu kiện phải chịu tải trọng trực tiếp từ tường xây phía trên. Khi đó dầm móng đóng vai trò là một dầm chịu uốn kết hợp với chịu nén. Ngược lại, một số trường hợp không có tường xây phía trên. Đồng thời cấu kiện chỉ chịu lực kéo – nén đúng tâm để ổn định vị trí giữa các móng. Lúc này cấu kiện này được gọi là giằng móng.
Vai trò của giằng móng là truyền tải trọng từ phần kết cấu bên trên xuống hệ móng. Đồng thời phân phối đều tải trọng giữa các móng nhằm giảm thiểu sự lún lệch không đồng đều. Đặc biệt, với móng cọc và móng băng, giằng móng còn có tác dụng dẫn truyền lực. Tất cả lực từ các dầm, cột sẽ chuyền xuống các đài cọc hoặc móng dài. Trong một số trường hợp, giằng móng còn được bố trí ngang bằng với cốt nền. Từ đó tăng cường khả năng chống nứt và chống thấm cho phần chân móng. Thông qua đó bảo vệ độ bền lâu dài của công trình.

Vai trò của việc tính toán giằng móng cọc là gì?
Trong lĩnh vực xây dựng, nền móng được xem là bộ phận thiết yếu trong công trình. Nó sẽ quyết định đến sự ổn định và tuổi thọ của toàn bộ công trình. Một kết cấu vững chắc không thể được đảm bảo nếu thiếu đi hệ thống móng được thiết kế đúng kỹ thuật và thi công chuẩn xác. Trong đó, việc tính toán giằng móng cọc là một công việc vô cùng quan trọng. Từ đó đảm bảo sự liên kết chân cột và móng đơn thành một khối thống nhất. Thông qua đó tăng cường độ ổn định cho công trình.
Dưới đây là các chức năng cụ thể và giá trị kỹ thuật của tính toán giằng móng:
- Giằng móng có tác dụng liên kết các móng đơn và chân cột. Thông qua đó tạo nên một hệ thống khung móng thống nhất.
- Giằng móng là giúp phân bố lại tải trọng từ tường, cột và kết cấu phía trên. Tất cả truyền xuống một cách đồng đều xuống các móng.
- Giằng móng góp phần hạn chế hiện tượng lún cục bộ, nứt tường hoặc biến dạng kết cấu. Đặc biệt quan trọng với công trình xây trên nền đất yếu.
- Giằng móng có thể được sử dụng làm nền đỡ cho các kết cấu phụ. Từ đó giúp truyền tải trọng của các cấu kiện này về móng.
- Giằng móng sẽ đóng vai trò như một khung ổn định. Hỗ trợ công trình chịu lực tổng hợp mà không bị suy yếu hoặc mất cân bằng.
- Giằng móng giúp liên kết các móng đơn thành một thể thống nhất. Từ đó hình thành hệ nền có tính liên kết cao và độ bền vững dài hạn.

Nguyên lý và cách tính toán giằng móng cọc chuẩn xác nhất
Các yếu tố cơ bản ảnh hưởng đến giằng móng
Khi tính toán giằng móng cọc, cần phân tích đồng thời nhiều tác động cơ học và địa chất. Thông qua đó xác định chính xác khả năng chịu lực và phương thức phân phối nội lực. Cụ thể, giằng móng cần được xem xét theo các yếu tố sau:
- Giằng móng thường là bộ phận chịu tải từ các tường xây không chịu lực chính. Mỗi tường nhà đều tạo ra một áp lực thẳng đứng đáng kể lên móng. Nó đòi hỏi giằng phải phân bổ và truyền tải lực xuống nền đất một cách ổn định.
- Dầm giằng móng có vai trò phân phối mô men và lực cắt từ chân cột sang các móng liền kề. Tại đây mô men chân cột có thể được chia sẻ theo tỷ lệ. Điều này sẽ tùy vào độ cứng tương đối giữa móng và giằng. Từ đó giúp hạn chế sự tập trung nội lực tại một điểm.
- Trong thực tế, sự lún không đều giữa các móng là điều khó tránh khỏi. Giằng móng có thể hỗ trợ một phần trong việc khống chế sự lún lệch này. Từ đó giúp bảo vệ kết cấu phía trên tránh khỏi nứt gãy do biến dạng không đồng đều.
- Một số trường hợp làm việc cùng với hệ sàn tầng hầm. Lúc này giằng móng sẽ chịu lực đẩy nổi từ nền đất tương tự như dầm sàn. Vì vậy, nó cần có độ cứng và độ ổn định phù hợp để chống lại hiện tượng này.
- Trong quá trình thiết kế hoặc thi công, móng có thể chịu các lệch tâm thiết kế. Sự lệch tâm này có thể diễn ra do hình dạng nhà, xây lệch. Ngoài ra móng cũng chịu lệch tâm ngẫu nhiên do sai lệch vị trí móng, thay đổi cục bộ. Lúc này giằng móng đóng vai trò trung hòa lực và duy trì cân bằng giữa các móng.

Công thức tính toán giằng móng cọc chuẩn nhất
Việc xác định khả năng chịu lực của giằng móng cần dựa vào các thông số tải trọng. Cùng với đó là các đặc tính nền đất và kích thước hình học của móng. Công thức cơ bản để tính toán giằng móng cọc như sau:
- Trong trường hợp tải trọng đúng trọng tâm: Ptb ≤ Rtc
- Khi tải trọng lệch tâm: Pmax ≤ 1.2 Rtc
Trong đó:
- Ptb: Áp suất trung bình tác động lên móng (kN/m²)
- Pmax: Áp suất lớn nhất tại mép móng khi có lệch tâm (kN/m²)
- Rtc: Cường độ tiêu chuẩn của nền đất (kN/m²)
Biểu thức tính toán cường độ nền móng:
R = m(A1/4 .γ.b+B.q+D.c)
Trong đó:
- b : Chiều rộng đáy móng (m)
- q : Tải trọng ngang tác động lên móng (kN/m)
- c : Lực dính đơn vị của nền đất (kN/m²)
- γ : Trọng lượng riêng của đất (kN/m³)
- A1/4 , B, D : Hệ số phụ thuộc vào góc ma sát trong của đất nền (tra bảng theo tiêu chuẩn nền móng)
- m: Hệ số điều kiện làm việc của móng (phụ thuộc loại đất, phương pháp thi công)

Cách thi công giằng móng cọc sau khi đã tính toán
Vừa rồi chúng ta đã biết cách tính toán giằng móng cọc. Lúc này việc cần làm đó là thi công giằng móng cọc sao cho chắc chắn nhất. Việc thi công giằng móng cũng tương đối đơn giản. Đây là cấu kiện dễ thi công và với thời gian nhanh nhất của ngôi nhà. Tuy nhiên, khi thi công vẫn cần đảm bảo đúng kỹ thuật và quy trình. Biện pháp thi công giằng móng gồm các bước và trình tự như sau
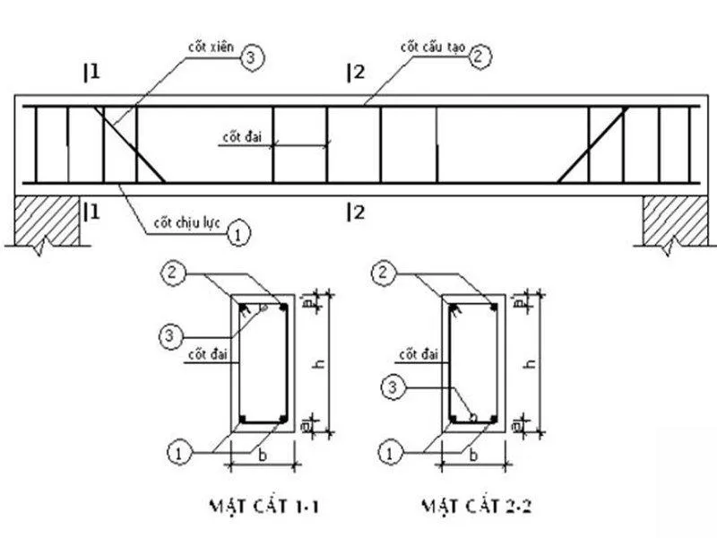
Gia công, lắp dựng và bố trí cốt thép giằng móng
- Tiến hành gia công cốt thép tại công trường hoặc xưởng gia công. Việc gia công được thục hiện theo đúng bản vẽ kỹ thuật.
- Lắp dựng thép vào vị trí giằng móng. Đảm bảo đúng đường kính, số lượng, chiều dài neo, khoảng cách và lớp bảo vệ theo tiêu chuẩn.
- Sử dụng thanh spacer (con kê bê tông) để cố định thép. Tất cả đảm bảo không bị xô lệch trong quá trình đổ bê tông.
- Kiểm tra mối nối thép (nối chồng hoặc hàn), đảm bảo chiều dài nối đạt yêu cầu chịu lực.
Lắp dựng cốp pha giằng móng
- Sử dụng ván khuôn gỗ hoặc cốp pha thép để định hình hình dạng, kích thước giằng theo thiết kế.
- Cốp pha phải được cố định chắc chắn bằng các thanh chống. Đảm bảo không biến dạng khi đổ bê tông.
- Các mối nối giữa các tấm cốp pha phải khít, không hở để tránh hiện tượng rò rỉ vữa trong quá trình thi công.

Thi công đổ bê tông giằng móng
- Chuẩn bị bê tông đúng cấp phối theo hồ sơ thiết kế (thường từ M200 trở lên).
- Đổ bê tông liên tục theo từng lớp. Dùng đầm rung để loại bỏ bọt khí, tránh rỗ mặt hoặc lỗ rỗng trong kết cấu.
- Trong trường hợp không đổ liên tục, cần tạo mạch ngừng kỹ thuật đúng cách. Thông qua đó bảo đảm liên kết bê tông.
Tháo dỡ cốp pha và bảo dưỡng bê tông
- Sau thời gian bảo dưỡng sơ bộ (từ 24–48 giờ), tiến hành tháo cốp pha theo đúng trình tự và an toàn.
- Thực hiện bảo dưỡng bê tông bằng cách phun nước hoặc phủ bạt ẩm liên tục. Thực hiện việc này liên tục trong tối thiểu 7 ngày để đảm bảo quá trình thủy hóa. Đồng thời tăng cường cường độ nén của bê tông.
- Kiểm tra bề mặt giằng móng, xử lý các vết nứt nhỏ hoặc khiếm khuyết (nếu có).
Xem thêm:
- Bố trí thép giằng móng là gì? Những điều cần biết
- Ép cọc bê tông làm nứt nhà bên cạnh do đâu? Khắc phục thế nào?
Trên đây là công thức tính toán giằng móng cọc chuẩn và chính xác nhất. Cùng với đó là vai trò giằng móng cọc và cách thi công giằng móng cọc. Để được tư vấn cụ thể, hãy liên hệ Xây dựng Mộc Trang theo thông tin bên dưới
Công ty TNHH xây dựng và nội thất Mộc Trang – Đơn vị thiết kế và thi công xây dựng trọn gói 𝗰𝗵𝗮̂́𝘁 𝗹𝘂̛𝗼̛̣𝗻𝗴 – 𝘂𝘆 𝘁𝗶́𝗻 tại Việt Nam.
Hotline: 0936 558 994 – 0984 927 618
Trụ sở: Số 693 Trường Chinh, P Quán Trữ, Q Kiến An, TP Hải Phòng
Website: https://xaydungmoctrang.vn/






