Thiết kế nhà ống 5 tầng có thang máy không chỉ là xu hướng trong bối cảnh đô thị hóa ngày càng gia tăng mà còn mang lại nhiều tiện ích cho cuộc sống hiện đại. Trong bài viết này, chúng ta sẽ cùng nhau khám phá những ưu điểm của việc tích hợp thang máy trong thiết kế nhà ống, các giải pháp bố trí mặt bằng hợp lý cho từng tầng, cũng như vị trí và thông số kỹ thuật của thang máy. Tất cả đều nhằm tối ưu công năng và diện tích của ngôi nhà.
Mục lục
Ưu điểm khi tích hợp thang máy trong nhà ống
Để bắt đầu, chúng ta hãy xem xét một số ưu điểm nổi bật khi tích hợp thang máy vào trong thiết kế nhà ống 5 tầng.
Tích hợp thang máy mang đến không chỉ sự tiện nghi cho sinh hoạt hàng ngày mà còn tạo ra nhiều giá trị cả về kinh tế và thẩm mỹ cho ngôi nhà.

Tăng tiện nghi sử dụng, phù hợp gia đình nhiều thế hệ và nhà cao tầng
Khi xây dựng các ngôi nhà cao tầng, đặc biệt là trong các thành phố lớn, thang máy trở thành một yếu tố thiết yếu giúp tối ưu hóa sự tiện nghi trong việc di chuyển giữa các tầng.
Việc tích hợp thang máy vào thiết kế nhà ống 5 tầng chắc chắn đáp ứng tốt nhu cầu của các gia đình nhiều thế hệ. Với nhiều thế hệ sinh sống trong một ngôi nhà, việc di chuyển giữa các tầng sẽ dễ dàng hơn rất nhiều. Điều này không chỉ giảm bớt sức ép cho những người già hoặc trẻ em mà còn tăng cường tính kết nối giữa các thành viên trong gia đình.
Thang máy giúp cho việc chuyển đồ từ tầng này sang tầng khác trở nên dễ dàng hơn, đặc biệt là trong những dịp lễ tết hay khi có khách đến chơi nhà. Không ai muốn trải qua việc phải mang vác đồ đạc nặng nề qua nhiều bậc cầu thang chỉ để chuyển từ phòng này sang phòng kia.

Tăng giá trị tài sản, thuận tiện cho thuê hoặc kinh doanh tầng trệt
Không chỉ mang lại sự tiện nghi cho người sử dụng, việc có thang máy cũng là một yếu tố quan trọng trong việc nâng cao giá trị bất động sản. Một ngôi nhà ống 5 tầng có thang máy sẽ thu hút được nhiều sự quan tâm từ phía khách hàng nếu bạn quyết định cho thuê hoặc bán.
Người mua hoặc thuê sẽ sẵn sàng trả nhiều hơn cho những ngôi nhà có thang máy, đặc biệt là tại những khu vực gần trung tâm thành phố. Ngoài ra, nếu bạn có ý định kinh doanh tầng trệt, việc có thang máy sẽ tạo thuận lợi cho việc vận chuyển hàng hóa và tạo cảm giác chuyên nghiệp, thu hút khách hàng hơn.
Thang máy cũng có thể giúp nâng cao trải nghiệm khách hàng khi họ đến cửa hàng của bạn. Những điều này cùng nhau tạo nên một giá trị gia tăng lớn cho ngôi nhà của bạn.
Giải pháp bố trí mặt bằng hợp lý cho từng tầng
Bố trí mặt bằng đóng một vai trò quan trọng trong việc tối ưu hóa công năng sử dụng. Sau đây là một số giải pháp bố trí cho từng tầng của ngôi nhà ống 5 tầng.
Việc tạo ra một kế hoạch tổ chức hợp lý không chỉ giúp tiết kiệm diện tích mà còn làm cho không gian sống trở nên tiện nghi và dễ chịu hơn.

Tầng 1: gara hoặc không gian kinh doanh, phòng khách, bếp và WC
Tầng 1 thường là tầng quan trọng nhất trong ngôi nhà, vì đây là nơi bạn tiếp khách và thường xuyên hoạt động.
Đối với thiết kế nhà ống 5 tầng, tầng 1 có thể được phân chia thành hai không gian chính: gara và không gian sinh hoạt. Nếu gia đình bạn có xe ô tô, việc bố trí gara ở tầng trệt là điều cần thiết. Gara có thể được thiết kế không chỉ đơn thuần là nơi đỗ xe mà còn có thể bố trí thêm khu vực để đồ, giúp ngôi nhà gọn gàng hơn.
Nếu tầng 1 không được sử dụng để đỗ xe, bạn có thể biến nó thành một không gian kinh doanh nhỏ, nơi bạn có thể mở một cửa hàng hoặc văn phòng nhỏ. Điều này sẽ giúp bạn tận dụng được mặt tiền cửa hàng, đồng thời tạo ra nguồn thu nhập ổn định.
Ngoài ra, không gian phòng khách và bếp cũng cần được thiết kế một cách hài hòa để tạo cảm giác thoải mái cho người sử dụng. Sự liên thông giữa các không gian này không chỉ tạo ra sự tiện lợi mà còn mang lại không khí ấm áp cho ngôi nhà. Đừng quên thiết kế một nhà vệ sinh (WC) ở tầng 1 để thuận tiện cho cả gia đình và khách đến chơi.
Tầng 2–4: 2 phòng ngủ, sảnh thang máy, WC riêng hoặc chung, khu sinh hoạt
Tầng 2 đến tầng 4 của ngôi nhà có thể được bố trí với các phòng ngủ riêng biệt. Mỗi tầng nên có 2 phòng ngủ, bên cạnh đó là khu vực sảnh thang máy và WC.
Với mỗi phòng ngủ, bạn nên chú ý đến việc bố trí cửa sổ để lấy ánh sáng tự nhiên. Điều này không chỉ giúp không gian sống trở nên sáng sủa mà còn giúp cải thiện tâm trạng cho mỗi thành viên trong gia đình. Nếu có không gian, bạn có thể thiết kế bàn làm việc nhỏ trong phòng ngủ để phục vụ cho nhu cầu học tập và làm việc.
Khu sinh hoạt chung có thể là nơi tụ họp cho các thành viên trong gia đình. Một không gian rộng rãi với ghế sofa thoải mái, chiếc bàn trà nhỏ xinh sẽ là lựa chọn lý tưởng cho những buổi tối sum họp hoặc xem phim cùng gia đình.
Tùy thuộc vào nhu cầu sử dụng, bạn có thể thiết kế WC riêng trong mỗi phòng ngủ hoặc một WC lớn chung cho cả tầng. Việc này phụ thuộc vào số thành viên sử dụng và mức độ riêng tư mà bạn muốn.
Xem thêm: Mẫu nhà ống 5 tầng có thang máy: giải pháp tối ưu cho không gian đô thị
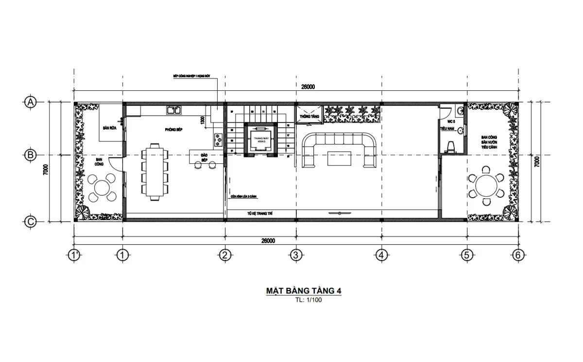
Vị trí và thông số kỹ thuật thang máy
Vị trí và thông số kỹ thuật của thang máy cần được thiết kế một cách hợp lý để tối ưu hóa diện tích và công năng của ngôi nhà.
Thang máy không chỉ cần được đặt ở vị trí thuận lợi cho việc di chuyển mà còn phải đảm bảo tính thẩm mỹ cho ngôi nhà.

Thang máy mini tải trọng 300–450 kg, giếng thang rộng khoảng 1,3–1,5 m²
Thang máy mini là sự lựa chọn hoàn hảo cho loại hình nhà ống 5 tầng. Tải trọng lý tưởng cho thang máy mini dao động từ 300–450 kg, đủ để phục vụ nhu cầu di chuyển hàng ngày của gia đình từ tầng này sang tầng khác.
Với giếng thang rộng khoảng 1,3–1,5 m², bạn sẽ có đủ không gian cho một thang máy hiện đại. Thiết kế này không chỉ giúp tiết kiệm diện tích mà còn đảm bảo an toàn khi sử dụng. Một số nơi, bạn có thể thiết kế thêm cửa kính cho các bức tường giếng thang để tạo cảm giác rộng rãi và thoáng đãng hơn.
Ngoài ra, việc lựa chọn thang máy cho phù hợp với mức tải trọng của ngôi nhà cũng rất quan trọng. Bạn cần xác định rõ nhu cầu sử dụng và số lượng người dùng để lựa chọn thang máy cho cân đối.
Vị trí đặt giữa nhà hoặc sát vách để tối ưu ánh sáng và lưu thông không khí
Vị trí đặt thang máy trong ngôi nhà cũng là yếu tố cần được cân nhắc kỹ lưỡng. Nếu bạn đặt thang máy ở vị trí giữa nhà, nó sẽ giúp cho việc lưu thông không khí và ánh sáng tự nhiên trong không gian sống tốt hơn.
Mặc khác, nếu không gian phía sau nhà bị hạn chế, bạn có thể lắp đặt thang máy sát vách. Điều này không chỉ tiết kiệm diện tích mà còn giúp không gian còn lại trở nên thông thoáng hơn. Các khung cửa sổ lớn có thể được lắp đặt bên cạnh để mang lại ánh sáng tự nhiên cho cả khu vực.
Một trong các yếu tố chính trong việc bố trí hệ thống thang máy là khả năng tiếp cận dễ dàng đến tất cả các tầng. Dựa vào điều kiện thực tế từng ngôi nhà, bạn có thể tư vấn thêm các kiến trúc sư để có được vị trí đặt thang máy hợp lý nhất.
Xem thêm: Bản vẽ nhà ống có thang máy: bố trí tối ưu cho không gian hiện đại
Kết luận
Thiết kế nhà ống 5 tầng có thang máy không chỉ giúp tối ưu không gian sống mà còn mang lại nhiều lợi ích về mặt tiện nghi và giá trị bất động sản. Việc tích hợp thang máy vào các ngôi nhà ống, đặc biệt là trong những đô thị lớn, đã trở thành một xu hướng cần thiết. Từ việc bố trí mặt bằng cho đến lựa chọn thang máy hợp lý, tất cả những yếu tố này đều góp phần tạo nên một không gian sống thoải mái và tiện nghi cho cả gia đình. Hy vọng rằng những thông tin trong bài viết này sẽ giúp bạn có được cái nhìn tổng quan hơn về thiết kế nhà ống 5 tầng có thang máy.
Có thể bạn quan tâm:
Ép cừ là gì? Các biện pháp ép cừ đúng tiêu chuẩn
Tìm hiểu chi tiết về móng cọc đài cao và đài thấp

Liên hệ ngay với Xây dựng Mộc Trang để được tư vấn chọn vật liệu chống thấm phù hợp, thi công đúng kỹ thuật và đảm bảo độ bền lâu dài.
Khảo sát tận nơi – Báo giá rõ ràng – Thi công uy tín, đúng tiến độ.
Công ty TNHH xây dựng và nội thất Mộc Trang – Đơn vị thiết kế và thi công xây dựng trọn gói chất lượng- uy tín tại Việt Nam.
Hotline: 0936 558 994 – 0984 927 618
Trụ sở: 693 Trường Chinh, Quán Trữ, Kiến An, Hải Phòng
Website: https://xaydungmoctrang.vn/
Fanpage: https://www.facebook.com/xaydungmoctrang.hp





