Hiện nay, nhà cấp 4 60m2 là lựa chọn cho vợ chồng mới cưới và tài chính chưa vững. Những công trình nhà như vậy có thể chứa từ 2-3 phòng ngủ. Từ đó có thể đáp ứng được nhu cầu công năng. Đồng thời mang đến cho gia đình một cuộc sống tiện nghi và thoải mái. Theo thời gian phong cách đương đại đang trở thành lựa chọn của nhiều gia đình khi thiết kế. Để dễ hình dung, hãy cùng Xây dựng Mộc Trang khám phá những mẫu thiết kế nhà cấp 4 diện tích 60m2 đẹp và hiện đại nhất cho gia đình.
Mục lục
- 1 Thiết kế bản vẽ mặt bằng nhà cấp 4 diện tích 60m2
- 2 Những mẫu thiết kế nhà cấp 4 diện tích 60m2 phong cách
- 2.1 Mẫu nhà cấp 4 diện tích 60m2 với thiết kế mái tôn đơn giản
- 2.2 Mẫu nhà 60m2 cấp 4 với thiết kế mái thái sang trọng
- 2.3 Thiết kế nhà cấp 4 diện tích 60m2 chữ L
- 2.4 Mẫu nhà cấp 4 60m2 có gác lửng tiện lợi
- 2.5 Thiết kế nhà cấp 4 60m2 với mái bằng tiện lợi
- 2.6 Thiết kế nhà cấp 4 60m2 2 phòng ngủ có sân vườn
- 3 Dự toán kinh phí cho mẫu thiết kế nhà cấp 4 diện tích 60m2 chi tiết
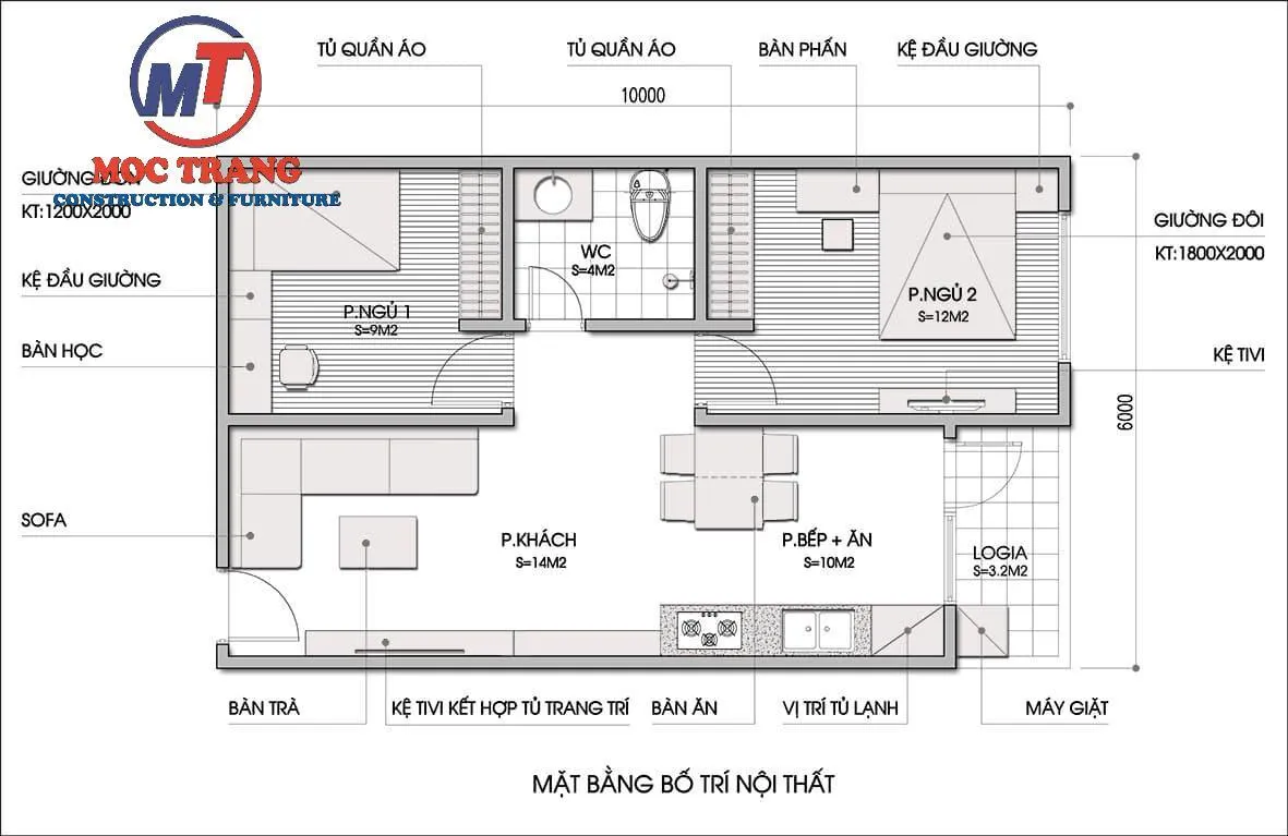
Thiết kế bản vẽ mặt bằng nhà cấp 4 diện tích 60m2
Bản vẽ công năng nhà cấp 4 diện tích 60m2 có vai trò vô cùng quan trọng khi thể hiện được đầy đủ khu vực công năng trong nhà. Trong đó, bản thiết kế cần đảm bảo được tính hài hòa. Cùng với đó là bố trí không gian phù hợp để tận dụng được tối đa diện tích sử dụng.
Đối với bản vẽ thiết kế nhà cấp 4 60m2 thì sẽ bao gồm các khu vực công năng như phòng ngủ, phòng khách, phòng ăn, WC, phòng tắm và sân phơi. Riêng phòng ngủ có thể bố trí từ 2-3 phòng ngủ. Tuy nhiên, cân tuân thủ những nguyên tắc thiết kế bản vẽ. Đồng thời bố trí các khu vực sinh hoạt ở vị trí và diện tích phù hợp. Quý khách có thể tham khảo qua bản vẽ công năng dưới đây.
Bản vẽ mặt bằng nhà cấp 4 60m2 2 phòng ngủ

Bản vẽ nhà cấp 4 60m2 3 phòng ngủ
Những mẫu thiết kế nhà cấp 4 diện tích 60m2 phong cách
Mẫu nhà cấp 4 diện tích 60m2 với thiết kế mái tôn đơn giản
Mẫu nhà có thiết kế đơn giản, không có đường gờ hay phào chỉ. Ngoài ra, thiết kế kết hợp cùng mái tôn giật cấp tạo nên hình khối hài hòa cho ngôi nhà. Phần mái được thực hiện khá đơn giản. Do đó, thời gian thi công mẫu nhà này sẽ khá nhanh chóng so với các mẫu nhà khác.
Khi xây dựng mẫu nhà này, bạn sẽ không tốn quá nhiều nguyên vật liệu thi công và không cần thuê nhiều thợ. Vì vậy, chi phí xây dựng sẽ tiết kiệm hơn. Tuy nhiên, so với các mẫu nhà như: mái thái, bê tông thì mẫu nhà mái tôn có khả năng chống nóng và chống ồn thấp hơn, khả năng thoát nước kém.

Mẫu nhà 60m2 cấp 4 với thiết kế mái thái sang trọng
So với những mẫu nhà cấp 4 khác thì thiết kế mái thái giúp tạo nên vẻ đẹp mới mẻ và sang trọng. Mô hình nhà ở này được lựa chọn xây dựng phổ biến ở cả nông thôn và đô thị. Từ đó giúp không gian sống ấn tượng hơn nhờ thiết kế phần mái độc đáo. Nhà ở cấp 4 mái thái có khả năng chống nóng, chống ồn và thoát nước tương đối tốt.
Tuy nhiên, khi thi công nhà cấp 4 diện tích 60m2 mái thái cần sự tỉ mỉ, chi tiết. Đồng thời, khi thiết kế và xây dựng cũng đòi hỏi độ chính xác cao. Vì vậy, xây dựng nhà mái thái tốn khá nhiều thời gian thi công. Từ đó khiến cho ngôi nhà có chi phí cao hơn nhà mái tôn.

Thiết kế nhà cấp 4 diện tích 60m2 chữ L
Mẫu thiết kế nhà cấp 4 diện tích 60m2 hình chữ L được nhiều gia đình lựa chọn. Đặc biệt, ngôi nhà rất phù hợp khi xây trên những lô đất không được vuông vức. Với thiết kế đặc trưng, mẫu nhà này khai thác triệt để từng góc cạnh của lô đất. Từ đó, tận dụng tạo thành ngôi nhà có tính thẩm mỹ cao. Thiết kế nhà hình chữ L cũng sẽ giúp bạn bày trí nội thất trong nhà đẹp mắt và hài hòa.
Khi lựa chọn mẫu thiết kế này, bạn nên tận dụng khoảng khuôn viên rộng rãi để trồng cây xanh thoáng mát. Từ ddos tạo cảm giác thư giãn cho gia đình. Ngoài ra, bạn cũng có thể tận dụng phần đất trống để đỗ xe hoặc nơi uống trà lý tưởng.

Mẫu nhà cấp 4 60m2 có gác lửng tiện lợi
Ưu điểm nổi bật của mẫu thiết kế nhà cấp 4 60m2 có gác lửng là tăng diện tích sử dụng. Đồng thời dễ dàng bố trí các phòng chức năng trong ngôi nhà.
Nhà cấp 4 có gác lửng sẽ trở nên đẹp, hiện đại và tiện lợi hơn. Điều này có được nhờ vào sự hài hòa giữa gác lửng và tổng thể ngôi nhà. Đặc biệt, không gian sẽ trở nên thoáng đãng, mát mẻ và rộng rãi hơn nếu bạn kết hợp nhà cấp 4 gác lửng với mái thái.

Thiết kế nhà cấp 4 60m2 với mái bằng tiện lợi
Mẫu thiết kế này không có quá nhiều chi tiết rườm rà, đơn giản, tiết kiệm. Tuy nhiên, nó vẫn đáp ứng được tính thẩm mỹ và hiện đại cho ngôi nhà. Nhà cấp 4 mái bằng được thiết kế bằng bê tông nguyên khối chắc chắn. Phần mặt tiền có thể ốp gạch hoặc đá hoa cương để làm điểm nhấn cho ngôi nhà.
Ngoài ra, bạn có thể tận dụng phần mái bằng nhô ra để che nắng hoặc kết hợp cùng giàn dây leo để ngôi nhà tươi mát hơn

Thiết kế nhà cấp 4 60m2 2 phòng ngủ có sân vườn
Các mẫu thiết kế nhà cấp 4 60m2 2 phòng ngủ có sân vườn mang đến không gian sống tươi mát, gần gũi hơn với thiên nhiên được nhiều gia chủ lựa chọn. Nhà cấp 4 60m2 có sân vườn có thẩm mỹ được đánh giá cao nhờ cách bố trí khuôn viên sân vườn đẹp mắt. Kiến trúc nhà vườn cấp 4 vô cùng giản dị, yên bình nhưng vẫn có được sức hút riêng.

Dự toán kinh phí cho mẫu thiết kế nhà cấp 4 diện tích 60m2 chi tiết
Bạn có thể tính chi phí xây dựng đơn giản và nhanh chóng theo công thức sau:
Chi phí tổng quát
Hiện chi phí thuê nhân công xây nhà cấp 4 2 phòng ngủ khoảng 1,3-1,5 triệu/ m2. Giá nhân công trung bình có thể sử dụng là: 1,4 triệu x 60m2 = 84 triệu (chưa bao gồm chi phí vật liệu xây dựng).
Nếu bạn chọn gói dịch vụ nhân công phần thô và nhân công hoàn thiện công trình thì chi phí dao động từ 2,8 đến 3 triệu đồng/ m2. Từ cách tính này, chi phí trung bình không bao gồm gạch men, đá granit, sơn nước, trần thạch cao là: 2,9 triệu × 60m2 = 140 triệu (bao gồm cả nhân công và nguyên vật liệu).
Nếu bạn chọn dịch vụ trọn gói thì đơn giá dao động từ 4 – 5 triệu/ m2. Do đó, chi phí trung bình là: 4,5 triệu x 60m2 = 270 triệu (chi phí hoàn thiện, chưa bao gồm nội thất).

Chi phí từng hạng mục xây dựng
Những chi phí xây nhà chính bao gồm:
- Sắt thép, cát, đá, gạch nhà, đinh, xi măng, gạch lát nền, đá ốp, bột chà ron, thạch cao, tôn, keo dán… khoảng 70 đến 80 triệu.
- Giá nhân công xây nhà khoảng 1,3-1,5 triệu/ m2 tương đương 78- 90 triệu (tính theo căn nhà có diện tích 60m2).
Các hạng mục khác
- Hệ thống điện nước 8 triệu;
- Sơn nhà khoảng 8 triệu;
- Gạch, đá granit khoảng 15 triệu;
- Cửa nhôm kính 8 triệu;
- Đèn và rèm cửa giá khoảng 6 triệu đồng;
- Giường, bàn ghế phòng khách và nội thất 10 triệu;
- Tủ bếp, bàn ăn 5 triệu đồng;
- Thiết bị phòng tắm và tủ quần áo giá 5 triệu đồng, kệ phòng khách giá 7 triệu đồng.
Tổng chi phí là 72 triệu.
Việc dự trù kinh phí bạn sẽ dễ dàng lên kế hoạch và thiết kế theo những số tiền đã dự trù, khiến bạn trở nên chủ động hơn rất nhiều.
Xem thêm:
- Những bản vẽ nhà chữ L 2 tầng 60m2 đẹp và phong cách nhất
- Biệt thự mini 2 tầng 60m2 đẹp, hiện đại và phong cách nhất
Mong rằng qua những chia sẻ trên bạn sẽ có thêm ý tưởng mới cho nhà cấp 4 60m2 của mình. Hi vọng những mẫu thiết kế nhà đẹp trên đây và những dự trù kinh phí mà chúng tôi giới thiệu sẽ giúp bạn có thêm nhiều lựa chọn. Để được tư vấn cụ thể, hãy liên hệ Xây dựng Mộc Trang theo thông tin bên dưới
Công ty TNHH xây dựng và nội thất Mộc Trang – Đơn vị thiết kế và thi công xây dựng trọn gói 𝗰𝗵𝗮̂́𝘁 𝗹𝘂̛𝗼̛̣𝗻𝗴 – 𝘂𝘆 𝘁𝗶́𝗻 tại Việt Nam.
Hotline: 0936 558 994 – 0984 927 618
Trụ sở: Số 693 Trường Chinh, P Quán Trữ, Q Kiến An, TP Hải Phòng
Website: https://xaydungmoctrang.vn/






