Những ngôi nhà 50m2 là sự lựa chọn của nhiều gia đình hiện nay. Đây là mẫu nhà sẽ giúp gia đình tiết kiệm được chi phí xây dựng phần thô cơ bản. Thay vì phải trang trải nhiều tiền cho diện tích đất thì có thể dùng để bố trí nội thất. Tùy theo nhu cầu, gia đình có thể chọn các kiểu nhà như 1 tầng, 2 tầng, 3 tầng. Vậy nên thiết kế ngôi nhà như thế nào ? Trong bài viết này, hãy cùng Xây dựng Mộc Trang khám phá những mẫu nhà 50m2 đẹp, tiện nghi và hiện đại cho gia đình
Mục lục
Lý do nên chọn những mẫu nhà 50m2 cho gia đình
Mẫu nhà 50m2 được ưa chuộng vì nhiều lý do sau:
- Giá thành phù hợp: Nhà có diện tích nhỏ hơn thường có giá thành xây dựng thấp hơn so với những ngôi nhà lớn hơn. Điều này làm cho mẫu nhà 50m2 trở thành một lựa chọn phù hợp cho những người có nguồn tài chính hạn chế hoặc muốn tiết kiệm chi phí xây dựng.
- Dễ quản lý và bảo trì: Một căn nhà nhỏ hơn dễ dàng quản lý và bảo trì hơn. Từ đó giúp giảm thiểu công sức và thời gian cần thiết để duy trì ngôi nhà. Điều này đặc biệt hữu ích cho những người có lịch trình bận rộn. Đồng thời có ít thời gian để dành cho việc quản lý nhà cửa.
- Tiết kiệm không gian: mẫu nhà 50m2 yêu cầu sự sáng tạo trong việc tận dụng không gian. Thiết kế thông minh và tối ưu hóa không gian tạo ra không gian sống thoải mái và tiện nghi. Trong đó bao gồm cả các khu vực đa năng và lưu trữ thông minh.
- Tiện ích và linh hoạt: Mẫu nhà 50m2 có thể được thiết kế để đáp ứng nhu cầu sống của gia đình. Đồng thời ngôi nhà vẫn giữ được tính linh hoạt. Các khu vực đa chức năng và các không gian mở có thể được tận dụng để phục vụ nhiều mục đích khác nhau. Từ không gian sinh hoạt chung đến không gian làm việc hay giải trí.

Các mẫu nhà 50m2 1 tầng đẹp và tối ưu
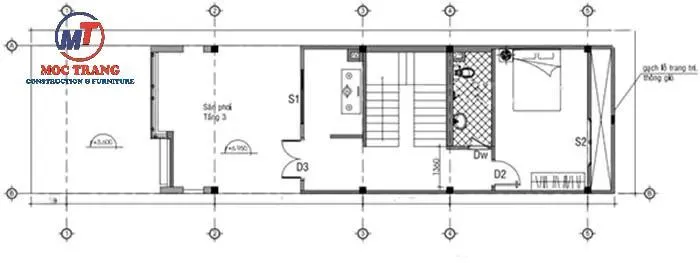
Bản vẽ công năng thiết kế nhà 50m2 1 tầng
Thiết kế nhà 50m2 1 tầng là những mẫu nhà có diện tích nhỏ. Vì thế cần có cách bố trí không gian hợp lý, khoa học. Tận dụng tối đa diện tích sử dụng sẽ giúp căn nhà trở nên thông thoáng, rộng rãi hơn.
Bản vẽ công năng nhà 1 tầng 50m2 yêu cầu phải đầy đủ công năng cơ bản trong nhà như phòng ngủ, phòng khách, bếp, WC và ban công phơi đồ. Với diện tích là 50m2 có thể thiết kế 1 – 2 phòng ngủ phục vụ nhu cầu các thành viên. Dưới đây là mẫu thiết kế công năng nhà 1 tầng 50m2 đầy đủ nhất. Đây sẽ là gợi ý mà quý khách có thể tham khảo.

Thiết kế nhà 50m2 1 tầng có gác lửng
Tiếp theo là vẻ đẹp của các mẫu nhà 50m2 1 tầng có gác lửng đang rất thịnh hành trong năm nay. Nhà ống có thêm gác lửng mang lại rất nhiều lợi ích cho gia chủ. Thiết kế này giúp tăng thêm diện tích sử dụng, tăng thẩm mỹ. Đồng thời không tốn thêm nhiều kinh phí đầu tư. Không gian gác lửng phù hợp để thiết kế phòng ngủ và WC.


Thiết kế nhà 50m2 1 tầng phong cách hiện đại
Phong cách thiết kế nhà 50m2 1 tầng hiện đại được các chủ đầu tư yêu thích sự năng động, trẻ trung lựa chọn. Không gian nhà 50m2 theo phong cách hiện đại được bài trí vô cùng bắt mắt với những gam màu sáng. Phong cách hiện đại làm tăng thêm thẩm mỹ và sức hút cho căn nhà. Từ đó những trải nghiệm của các thành viên được trọn vẹn hơn.


Thiết kế nhà 50m2 1 tầng mái lệch sang trọng
Các mẫu thiết kế nhà 50m2 1 tầng mái lệch đang thu hút được sự chú ý của rất nhiều chủ đầu tư trong thời gian gần đây. Với nét độc đáo và hiện đại của nhà mái lệch, việc bố trí không gian cũng sẽ rất dễ dàng, thoải mái. Nhà mái lệch 50m2 sở hữu nhiều ưu điểm về thẩm mỹ, công năng mang đến cho các thành viên.


Thiết kế nhà 50m2 1 tầng mái bằng ấn tượng
Những mẫu thiết kế nhà 50m2 1 tầng mái bằng sở hữu thẩm mỹ rất khó lỗi thời. Mẫu nhà này phù hợp với phong cách kiến trúc hiện đại, sang trọng. Nhà mái bằng mang đến rất nhiều lợi ích cho chủ đầu tư như có giá thành thi công rẻ. Ngoài ra, ngôi nhà cũng dễ dàng sửa chữa và xây mới căn nhà trong tương lai.


Các mẫu nhà 50m2 2 tầng đẹp và tiện nghi
Thiết kế nhà ống 2 tầng 50m2 hiện đại
Dưới đây là bản thiết kế mặt bằng nhà 2 tầng 50m2 với tầng 1 gồm có 3 phòng là phòng khách, phòng bếp và phòng ngủ. Theo như bản vẽ, phòng ngủ được bố trí phía cuối tạo không gian riêng tư. Phía giữa phòng khách và phòng bếp là cầu thang chữ U kết hợp cùng giếng trời nhằm phân khoảng cách giữa các phòng và có thể lấy được nhiều ánh sáng nhất có thể.

Mẫu nhà 2 tầng 50m2 được thiết kế dưới dạng máy bằng tăng thêm sự tinh tế, hiện đại cho căn nhà. Bên cạnh đó, mẫu nhà này đã tận dụng triệt để không gian. Từ đó tối ưu diện tích sử dụng các phòng với nhiều công năng khác nhau. Bên cạnh đó có thể đánh giá chi phí xây dựng của mẫu nhà này là phù hợp, hài hòa.

Mẫu nhà 2 tầng đẹp 50m2 mái thái
Mẫu nhà thiết kế 2 tầng đẹp 50m2 mái thái được nhiều người ưa chuộng nhờ đường nét thiết kế độc đáo, với ý nghĩa về mặt phong thủy. Gam màu trắng chủ đạo tạo sự tinh tế được kết hợp với ban công rộng rãi. Từ đó tạo cảm giác thoáng đãng, dễ chịu. Một trong những điểm mà khách hàng thích ở mẫu nhà nà đó là mặt tiền sang trọng, lịch sự.

Mẫu thiết kế nhà 2 tầng 50m2 mái thái với phong cách hiện đại với tông màu trắng tinh tế làm chủ đạo. Kết hợp cây xanh được trồng xung quanh tạo cảm giác thoáng đãng, gần gũi với thiên nhiên. Sân thượng sử dụng cửa kính giúp tạo không gian mở. Thiết kế này giúp căn nhà có thể đón được ánh sáng nhiều nhất có thể.

Mẫu nhà 2 tầng 50m2 mái bằng
Thiết kế nhà 2 tầng 50m2 mái bằng được rất nhiều gia đình ưa chuộng hiện nay nhờ những đường nét cá tính, độc đáo. Đồng thời mang đầy đủ những công năng cần thiết. Với tông nâu gỗ chủ đạo mang lại cảm giác gần gũi với thiên nhiên nhưng không kém phần hiện đại, trang trọng. Phía ngoài căn nhà được bố trí nhiều đèn đem lại cảm giác rực rỡ, ấm cúng cho căn nhà.

Bản thiết kế nhà 50m2 mái bằng được rất nhiều người yêu thích hiện nay. Điều này có nhờ cách phân bổ không gian hiệu quả, phù hợp với nhu cầu của người dùng. Cách bố trí thông minh giúp tận dụng tối đa không gian trống. Từ đó mang đến một không gian sống tiện nghi.


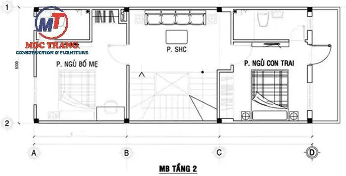
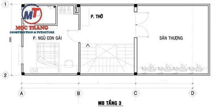
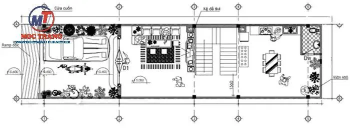
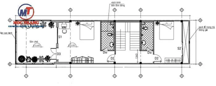
Những mẫu nhà 3 tầng 50m2 rộng rãi và hiện đại
Mẫu thiết kế nhà 50m2 3 tầng đẹp, hiện đại
Mẫu thiết kế nhà ống diện tích 50m2 là một mẫu thiết kế nhà ống đẹp sử dụng gam màu trắng chủ đạo mang lại sự sang trọng, hiện đại. Các đường nét thiết kế sắp xếp khoa học thể hiện sự cá tính của gia chủ. Mỗi tầng được bố trí chậu cây cảnh nhỏ mang đến không gian đầy tiện nghi.

Bản vẽ thiết kế của công trình mô tả chi tiết các phòng chức năng của căn nhà. Cách bố trí phòng khách, phòng bếp, phòng ngủ vô cùng khoa học, hài hòa và phù hợp với tổng thể kiến trúc.



Thiết kế nhà 50m2 3 tầng 2 mặt tiền
Với thiết kế nhà 2 mặt tiền, gia chủ nên bố trí ấn tượng để tạo sự thu hút. Ngoài ra, có thể tận dụng lợi thế nhà đẹp để mở quán hàng kinh doanh. Một phương án có thể áp dụng là cho thuê làm cửa hàng.


Thiết kế nhà 3 tầng 50m2 có gara
Mẫu thiết kế nhà 3 tầng có gara này vô cùng hiện đại. Ngoài ra cũng có thể chọn xây nhà có tầng bán hầm. Phần lan can được gia chủ bố trí thêm cây xanh tạo môi trường sống gần gũi với thiên nhiên. Ngoài ra, việc lựa chọn màu sơn ngoại thất tương phản cũng giúp tạo điểm nhấn cho mẫu thiết kế này.




Bí kíp tối ưu không gian nhà 50m2
Tối ưu về thiết kế nhà
Nhiều quan niệm cho rằng các thiết kế nhà phải nổi bật mới đẹp. Tuy nhiên thực tế đã cho thấy hoàn toàn không phải như vậy. Bằng chứng cho thấy là có rất nhiều căn nhà có thiết kế đơn giản nhưng vẫn mang tính thẩm mỹ khá cao.
Vì vậy để tối ưu chi phí thi công cho các mẫu nhà 2 tầng 50m2 3 phòng ngủ, bạn nên lựa chọn cho gia đình mình những thiết kế đơn giản và tối ưu nhất. Mặc dù đơn giản nhưng các thiết kế vẫn được đảm bảo chau chuốt về từng đường nét, chi tiết. Từ đó mang lại sự tinh tế, sang trọng cho không gian sống của gia đình bạn.
Cân nhắc về nguyên vật liệu xây dựng
Nguyên vật liệu xây dựng cũng là một trong những yếu tố có tác động trực tiếp đến giá thành thi công mỗi công trình nhà ở hiện nay. Vì vậy tùy theo điều kiện kinh tế của mỗi gia đình, bạn có thể cân nhắc để lựa chọn các loại vật liệu với giá thành phù hợp nhất.
Hiện nay trên thị trường các loại vật liệu xây dựng cũng khá đa dạng. Điều này đảm bảo có thể đáp ứng được mọi nhu cầu sử dụng của mỗi gia chủ. Tuy nhiên bạn nên cân nhắc lựa chọn được các vật liệu có đầy đủ nguồn gốc, xuất xứ. Không nên vì ham rẻ mà lựa chọn những loại nguyên liệu kém chất lượng, không rõ nguồn gốc.

Lựa chọn thời điểm thi công phù hợp.
Theo đó giá thành nguyên vật liệu và giá thành nhà thầu tại các thời điểm này cũng sẽ cao hơn bình thường. Thậm chí bạn còn có thể gặp phải tình trạng thiếu nhà thầu. Ngoài ra là không mua đủ nguyên vật liệu thi công như mình mong muốn.
Do đó bạn cần cân nhắc thật kỹ để lựa chọn được thời điểm thi công phù hợp nhất. Điều này vừa đảm bảo tiết kiệm chi phí, vừa đảm bảo thuận lợi về thời tiết. Từ đó không làm ảnh hưởng đến tiến độ của công trình.
Lựa chọn đơn vị thi công uy tín
Việc lựa chọn đơn vị thi công cũng ảnh hưởng khá nhiều đến tiến độ cũng như hiệu quả của mỗi công trình. Do đó bạn cần tham khảo để lựa chọn cho mình những đơn vị thi công uy tín nhất.
Một đơn vị thi công có uy tín, có năng lực không chỉ giúp bạn hoàn thiện căn nhà của mình theo đúng tiến độ, đảm bảo chất lượng thi công tuyệt đối mà còn hạn chế tối đa việc phát sinh thêm các chi phí không đáng có, giúp bạn tiết kiệm được các khoản chi phí cho việc xây dựng nhà của mình.

Xem thêm:
- Các bản vẽ thiết kế nhà 50m2 đẹp và tiện nghi và tối ưu không gian
- Thiết kế nhà ống 50m2 và tổng hợp mẫu nhà đẹp
Trên đây là tổng hợp các mẫu nhà 50m2 theo từng nhu cầu về tầng để các bạn tham khảo. Ngoài ra là các lưu ý khi thiết kế và xây dựng ngôi nhà. Để được tư vấn cụ thể, hãy liên hệ Xây dựng Mộc Trang theo thông tin bên dưới
Công ty TNHH xây dựng và nội thất Mộc Trang – Đơn vị thiết kế và thi công xây dựng trọn gói 𝗰𝗵𝗮̂́𝘁 𝗹𝘂̛𝗼̛̣𝗻𝗴 – 𝘂𝘆 𝘁𝗶́𝗻 tại Việt Nam.
Hotline: 0936 558 994 – 0984 927 618
Trụ sở: Số 693 Trường Chinh, P Quán Trữ, Q Kiến An, TP Hải Phòng
Website: https://xaydungmoctrang.vn/





