Mẫu nhà mái Nhật 1 tầng hiện nay đang rất được ưa chuộng tại các vùng quê ở Hải Phòng. Mộc Trang tự hào khi được anh Hùng ở An Lão giao trọn gói thi công xây dựng nhà mái Nhật cho gia đình anh.
Diện tích sử dụng nhà mái Nhật
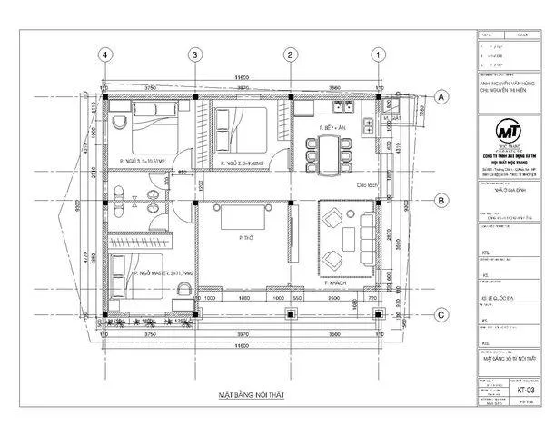
Với ưu điểm diện tích đất rộng tại các vùng quê, mẫu nhà mái Nhật đang được nhiều gia đình ưu tiên lựa chọn để xây dựng. Diện tích xây dựng khoảng 130m2 cho 1 tầng, đội ngũ kts nhà Mộc Trang đã bố trí đầy đủ công năng cho một gia đình có 3 thế hệ. Với phòng thờ, phòng khách, phòng bếp, 3 phòng ngủ và 2 nhà vệ sinh đảm bảo không gian sinh hoạt của cả gia đình gồm 6 thành viên.
Mặt bằng bố trí công năng mẫu nhà mái Nhật 1 tầng An Lão
Quá trình thi công xây dựng nhà mái Nhật 1 tầng An lão
Hình ảnh thi công thực tế so với thiết kế 3D

Hình ảnh thực tế nhà mái Nhật
Trong quá trình thi công phần thô, đội ngũ kỹ thuật giám sát cùng đội ngũ thi công, từng bước hoàn thiện ngôi nhà cho gia đình. Kiểm soát vật tư, vật liệu theo đúng nội dung trong hợp đồng thi công xây dựng.

Thi công xây dựng nhà anh Hùng An Lão

Giai đoạn hoàn thiện phần thô nhà mái Nhật
Anh Hùng chia sẻ: ” Anh đi làm xa, người nhà lại không am hiểu nhiều về xây dựng, nên anh muốn tìm một đơn vị có thể đảm nhận từ thiết kế đến thi công trọn gói. Điều này đã giúp anh tiết kiệm được rất nhiều thời gian và chi phí phát sinh, yên tâm công tác. Anh tin tưởng Mộc Trang sẽ giúp anh hoàn thiện ngôi nhà mơ ước này.” Đó là những lời chia sẻ tiếp thêm sức mạnh cho đội ngũ nhà Mộc Trang ngày càng cố gắng hơn và đem đến chất lượng tốt nhất cho mỗi công trình.
Đội ngũ nhà Mộc Trang xin cảm ơn gia đình Anh Hùng cùng Quý khách hàng đã luôn tin tưởng Mộc Trang. Với phương châm: MỘC TRANG – ĐỒNG HÀNH CÙNG NGÔI NHÀ BẠN, chúng tôi cam kết sẽ theo sát mỗi giai đoạn của công trình, đảm bảo chất lượng – tiến độ – an toàn, đồng hành cùng gia chủ trong quá trình xây dựng lên ngôi nhà mơ ước.
Công ty TNHH xây dựng và nội thất Mộc Trang – Đơn vị thiết kế và thi công xây dựng trọn gói 𝗰𝗵𝗮̂́𝘁 𝗹𝘂̛𝗼̛̣𝗻𝗴 – 𝘂𝘆 𝘁𝗶́𝗻 tại Việt Nam.
Hotline: 0936 558 994 – 0984 927 618
Trụ sở: Số 693 Trường Chinh, P Quán Trữ, Q Kiến An, TP Hải Phòng
Website: https://xaydungmoctrang.vn/









Review Thi công xây dựng nhà Mái Nhật 1 tầng tại An Lão Hải Phòng
Chưa có đánh giá nào.